Vuokrataan toimistotilat - Espoo
Säterinkatu 6, Leppävaara, 02600 Espoo #10842334
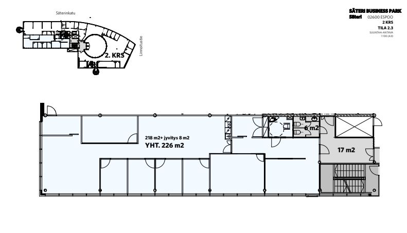
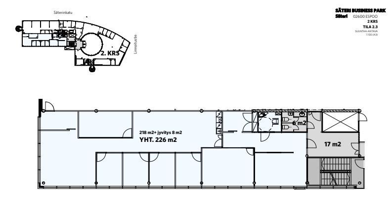
Vuokrataan moderni muuttovalmis toimistotila edustavasta Säteri Business Parkista. Tila koostuu avotilasta ja useista huoneista. Ohessa havainnollistavia kuvia.
Moderni kansainväliset vaatimukset täyttävä valoisa toimistorakennus, jonka keskellä pyöreä läpitalon ulottuva avoinainen valokatetila, joka päästää luonnonvalon sisään. Ensimmäisessä kerroksessa sijaitsevat vastaanottotilat, neuvotteluhuoneet ja ruokala. Edustustilat ja sauna ovat 6. kerroksessa.
Vuokrattavat tilat sijaitsevat 2. - 6 kerroksissa. Toimistokerrokset ovat sellaisia, että tilat voidaan muunnella kulloistenkin tarpeiden mukaisesti ja ne voidaan vuokrata joko kokonaisuutena tai jaettuna.
Lisätiedot ja kohde-esittelyt 020 7290 710, lisää kohteita premises.fi
Kohteella ei ole lain edellyttämää energiatodistusta tai energialuokka ei tiedossa.Kerros: 2
CRE PREMISES
Puh. Näytä puhelinnumero 020 7290 710
Vantaankoskentie 14
01670 VANTAA
