Vuokrataan toimistotilat - Espoo
Linnoitustie 3, Leppävaara, 02600 Espoo #10842333
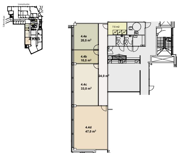
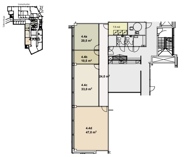
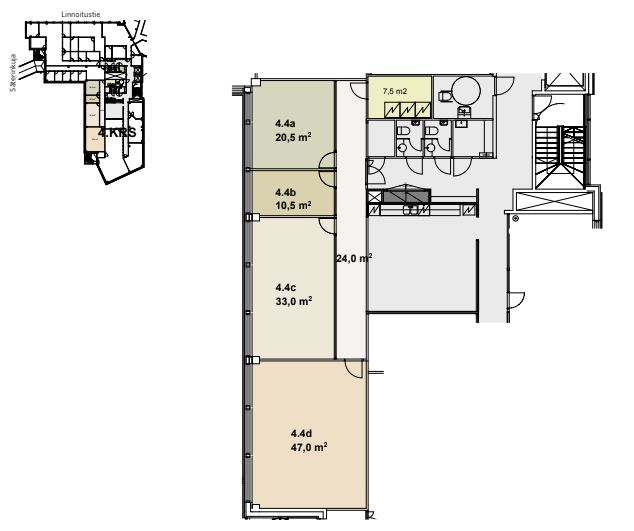
Erikokoisia pientoimistoja tarjolla joustavasti yrityksen tarpeisiin. Kerroksen asiakkaiden yhteisessä käytössä on keittiö, lounge ja wc-tilat. Yhteisalueet sisältävät sekä Flex tai Flex Plus -pientoimistopalvelut.
Säteri Business Park muodostuu kahdesta modernista toimistotalosta, Linnoituksesta ja Säteristä sekä niiden yhteisestä maanalaisesta pysäköintihallista.
Aulan yhteydessä sijaitsevat myös lounasravintola ja kampaamo, ja rakennuksen ylimmästä kerroksesta löytyy kuntosali saunatiloineen sekä viihtyisät terassialueet rentoutumiseen.
Linnoituksen puolella asiakkaita palvelee aulapalvelu, jonka yhteydessä on 24/7 kahvilapiste. Ylimmässä kerroksessa sijaitsee edustava tapahtuma- ja kokoustila, joka soveltuu jopa 100 hengen tilaisuuksiin.
Molempien rakennusten aula- ja loungetilat tarjoavat inspiroivan ympäristön työskentelyyn sekä kiinteistön asiakkaille että vieraille.
Säteri Business Park sijaitsee Leppävaaran modernissa Business Park -keskittymässä, keskeisellä paikalla Kehä I:n ja Leppävaaran juna-aseman läheisyydessä, joka mahdollistaa sujuvan työmatkailun niin omalla autolla kuin julkisilla kulkuneuvoillakin.
Lisätietoa 020 7290 710 ja lisää kohteita premises.fi.
Kohteella ei ole lain edellyttämää energiatodistusta tai energialuokka ei tiedossa.Kerros: 4
CRE PREMISES
Puh. Näytä puhelinnumero 020 7290 710
Vantaankoskentie 14
01670 VANTAA
