Vuokrataan toimistotilat - Helsinki
Pukinmäenaukio 2, Pukinmäki, 00720 Helsinki #10842277
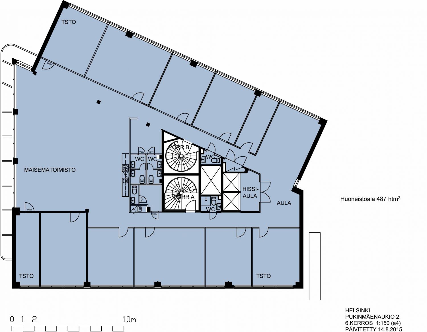
Selkeä ja siisti ylimmän kerroksen avo-/huonetoimistotilakokonaisuus yhteensä 487 m² erinomaisten liikenneyhteyksien varrella! Tila on helposti muokattavissa toiveiden ja tarpeiden mukaiseksi. Vapa...
Osoite
Pukinmäenaukio 2, 00720 Helsinki
Tilatyyppi
Toimistotilaa
487 m2
Kiinteistö
Pukinmäenaukio 2 tarjoaa hyvin toimivaa ja muokattavaa toimistotilaa yritykselle, joka arvostaa käytännöllisyyttä ja sujuvaa liikkumista pääkaupunkiseudulla. Sijainti erinomaisten liikenneyhteyksien varrella Helsingin Pukinmäessä. Junat kulkevat viereiseltä Pukinmäen asemalta kymmenen minuutin välein ja kymmenessä minuutissa keskustaan ja lentokentälle. Kehä I:stä kulkevat jatkuvasti bussit länteen ja itään aina Otaniemeen ja Itäkeskukseen saakka. Pukinmäenaukioon on helppo tulla myös autolla...
Muuta
Selkeä ja siisti ylimmän kerroksen avo-/huonetoimistotilakokonaisuus yhteensä 487 m² erinomaisten liikenneyhteyksien varrella! Tila on helposti muokattavissa toiveiden ja tarpeiden mukaiseksi. Vapautuu 1.4.2026!
Kiinteistössä on viihtyisä oleskelutila saunan yhteydessä ja suihkumahdollisuus työmatkaliikkujille, lisäksi polkupyörille oma lukollinen säilytystila.
Soita Kirsi Väisänen p. 050 549 5101 ja kysy lisätietoja!
Katso lisätiedot
Kiinteistössä on viihtyisä oleskelutila saunan yhteydessä ja suihkumahdollisuus työmatkaliikkujille, lisäksi polkupyörille oma lukollinen säilytystila.
Soita Kirsi Väisänen p. 050 549 5101 ja kysy lisätietoja!
Katso lisätiedot
Vapautuu
01.04.2026
Rakennusvuosi
1985
Energiatehokkuusluokka
C
Ota yhteyttä
Fokus Nordic Finland Oy
Näytä puhelinnumero
+358 50 549 5101
Kirsi Väisänen
Näytä puhelinnumero
+358 50 549 5101
Näytä puhelinnumero
+358 50 549 5101
Pyydä lisätietoa
