Vuokrataan toimistotilat - Espoo
Säterinkatu 6, Leppävaara, 02600 Espoo #10842271
Modernia ja valoisaa toimistotilaa hyvällä sijainnilla Espoon Leppävaarassa Sellon kauppakeskuksen läheisyydestä.
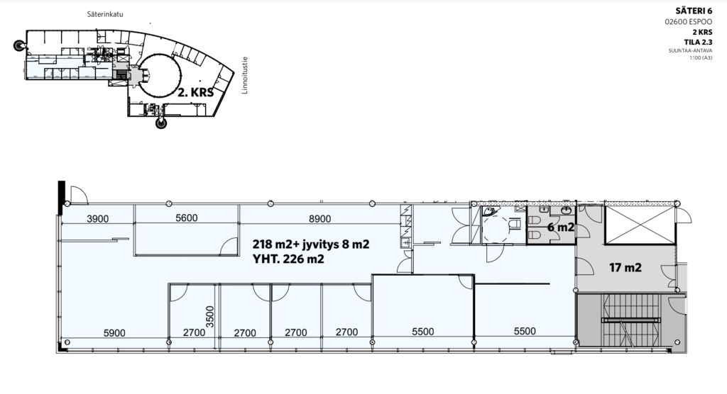
Tämä 226 m² tila sijaitsee kiinteistön 2. kerroksessa. Toimisto on pääosin huoneellinen, ja siihen kuuluu oma keittiö ja wc-tila.
Säterinkatu 6 eli Säteri6 on toimistokiinteistö erinomaisten kulkuyhteyksien varrella Espoon Leppävaarassa. Kiinteistö on rakennettu vuonna 2001 ja sen tilat vastaavat nykyajan toimistovuokralaisen tarpeisiin. Sen tilat ovat muokattavissa yrityksen tarpeiden mukaan. Ne saadaan täysin avonaisiksi, huoneiden ja avotilan yhdistelmiksi tai monitilatoimistoiksi. Lisäksi kiinteistössä on monipuoliset Business Park-tason palvelut.
Kysy lisää numerosta 044 723 4700 tai info@bref.fi. Palvelumme on tilanhakijoille ilmainen.
Rakennuksesta löytyy oma kuntosali sekä suihku- ja pukuhuonetilat. Ylimmäisessä kerroksessa on myös oma saunatila hienoine pukutiloineen ja sen kattoterassilla voi vilvoitella sekä nauttia maisemista.
Hissi
Bureau Real Estate Finland Oy
Lars Sonckin kaari 16, 02600 Espoo
Näytä puhelinnumero
0447234700
Bureau Real Estate Finland Oy
https://www.bref.fi