Vuokrataan toimistotilat - Espoo
Tekniikantie 14, Otaniemi, 02150 Espoo #10842205
Tyylikästä nykyaikaista toimistotilaa Espoon Otaniemessä
Osoite
Tekniikantie 14, 02150 Espoo
Tilatyyppi
Toimistotilaa
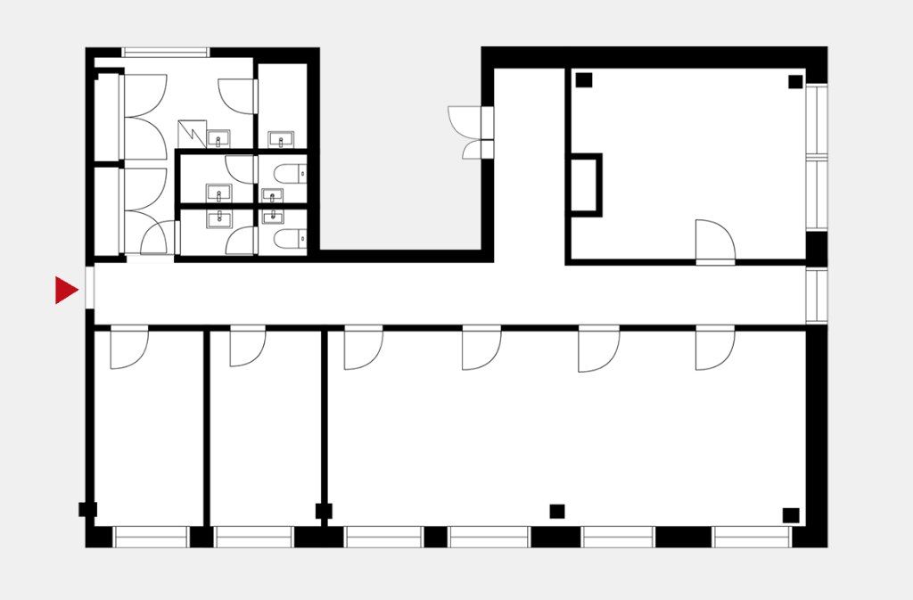
153 m2
Pysäköinti
Kyllä
Muuta
Vuokrataan laadukasta toimistotilaa Innopoli 2:ssa, kehittyvän Otaniemen alueella. Vuokrattava tila on 5. kerroksen 153m2 toimistokokonaisuus, joka on räätälöitävissä juuri teille sopivaksi.
Technopoliksen toimintaympäristö takaa vuokralaisilleen erinomaiset ja modernit palvelut tilanteeseen kuin tilanteeseen. Kiinteistö on valmistunut 2009 ja on kaikki modernin Business Parkin palvelut: aula-ja kokouspalvelut, ravintola, hyvinvointipalvelut, edustustilat, toimitilojen suunnittelupalvelu, it-palvelut, siivous-ym. toimitilapalvelut, muuttopalvelu ja vuokrattavia toimistokalusteita.
Innopoli 2:n sijainti on erinomainen Kehä 1 välittömässä läheisyydessä ja Otaniemen vetovoimaisessa ympäristössä.
Kuvat ovat esimerkkikuvia asiakkaille toteutetuista ratkaisuista.
Tervetuloa tutustumaan, varaathan välittäjältä oman esittelyaikasi! Kysyt myös muita sopivia vaihtoehtoja - palvelumme on tilanhakijalle veloitukseton.
Technopoliksen toimintaympäristö takaa vuokralaisilleen erinomaiset ja modernit palvelut tilanteeseen kuin tilanteeseen. Kiinteistö on valmistunut 2009 ja on kaikki modernin Business Parkin palvelut: aula-ja kokouspalvelut, ravintola, hyvinvointipalvelut, edustustilat, toimitilojen suunnittelupalvelu, it-palvelut, siivous-ym. toimitilapalvelut, muuttopalvelu ja vuokrattavia toimistokalusteita.
Innopoli 2:n sijainti on erinomainen Kehä 1 välittömässä läheisyydessä ja Otaniemen vetovoimaisessa ympäristössä.
Kuvat ovat esimerkkikuvia asiakkaille toteutetuista ratkaisuista.
Tervetuloa tutustumaan, varaathan välittäjältä oman esittelyaikasi! Kysyt myös muita sopivia vaihtoehtoja - palvelumme on tilanhakijalle veloitukseton.
Vapautuu
Kysy
Rakennusvuosi
1991
Kerros
5
Ota yhteyttä
Tuloskiinteistöt Oy
Rikhardinkatu 2 B 5, 00130 Helsinki
Näytä puhelinnumero
(09) 6841 620
Nina Meyke
Commercial Real Estate Advisor
Näytä puhelinnumero
+358 50 466 1519
Jorma Ryynänen
Commercial Real Estate Advisor LKV, LVV
Näytä puhelinnumero
+358 40 708 4064
Pyydä lisätietoa
