Vuokrataan toimistotilat - Helsinki
Keskuskatu 1B, Keskusta, 00100 Helsinki #10842190
Vuokrattavana kahdessa kerroksessa olevaa, hienoa, modernia ja tyylikästä toimistotilaa huippusijainnilla.
Osoite
Keskuskatu 1B, 00100 Helsinki
Tilatyyppi
Toimistotilaa
815,5 m2
Kiinteistö
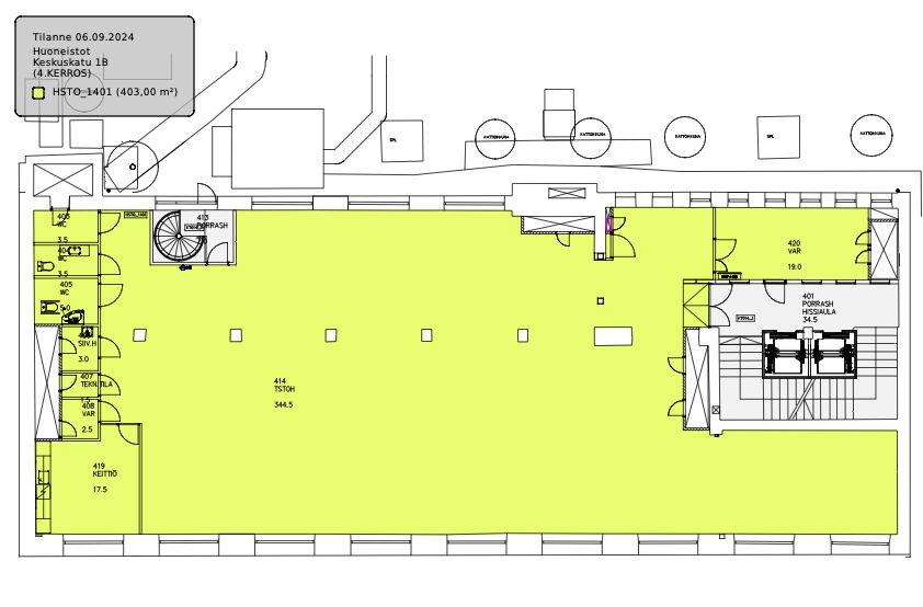
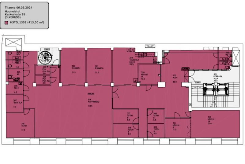
Vuokrattavana kahdessa kerroksessa olevaa, hienoa, modernia ja tyylikästä toimistotilaa huippusijainnilla Helsingin keskustassa. Tilassa on avotila, työhuoneet, neuvottelutilat, taukotila ja wc-tilat.
Sijainti
Keskusta, Helsinki
Pysäköinti
Pysäköintipaikkoja keskustan pysäköintilaitoksissa.
Palvelut
Ydinkeskustan palvelut.
Kulkuyhteydet
-Metro
-Raitiovaunu
-Bussi
-Oma auto
-Raitiovaunu
-Bussi
-Oma auto
Vapautuu
Heti
Kerros
3-4
Energiatehokkuusluokka
Ei lain edellyttämää energiatodistusta
Näkyvällä paikalla
Hissi
Ota yhteyttä
REALIUM OY LKV
Tammasaarenkatu 1, 00180 Helsinki
Vaihde:
Näytä puhelinnumero
010 326 346
Tuomo Mäkelä
tuomo.makela@realium.fi
p.
Näytä puhelinnumero
044 050 1158
Joel Keto
joel.keto@realium.fi
p.
Näytä puhelinnumero
045 317 0330
KAIKKI TILAVAIHTOEHDOT KERRALLA!
SOITA - MEILAA JA TILAA NÄYTTÖ!
Ilmainen palvelu tilanhakijoille.
Kartoitamme parhaat tilavaihtoehdot.
Kaikki kohteet eivät ole netissä.
Pyydä lisätietoa
