Vuokrataan toimistotilat - Oulu
Kiviharjunlenkki 1, 90220 Oulu #10842170
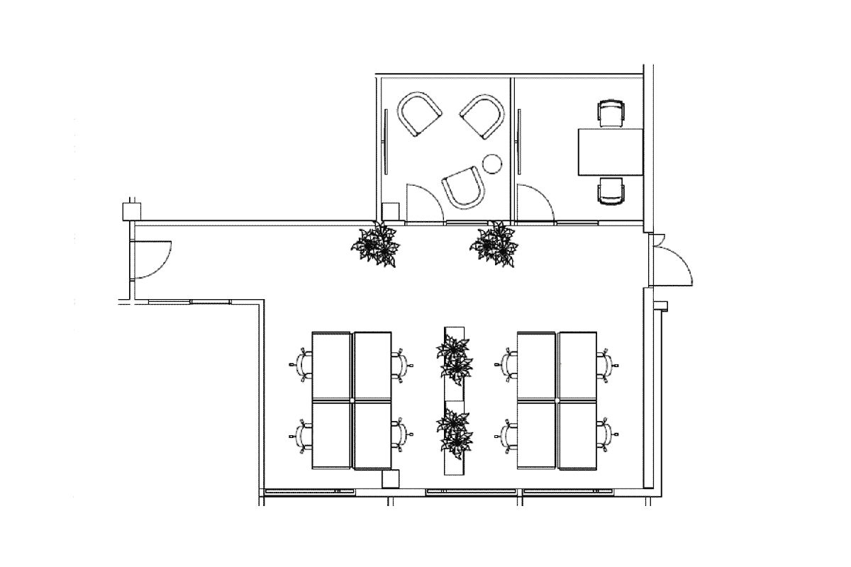
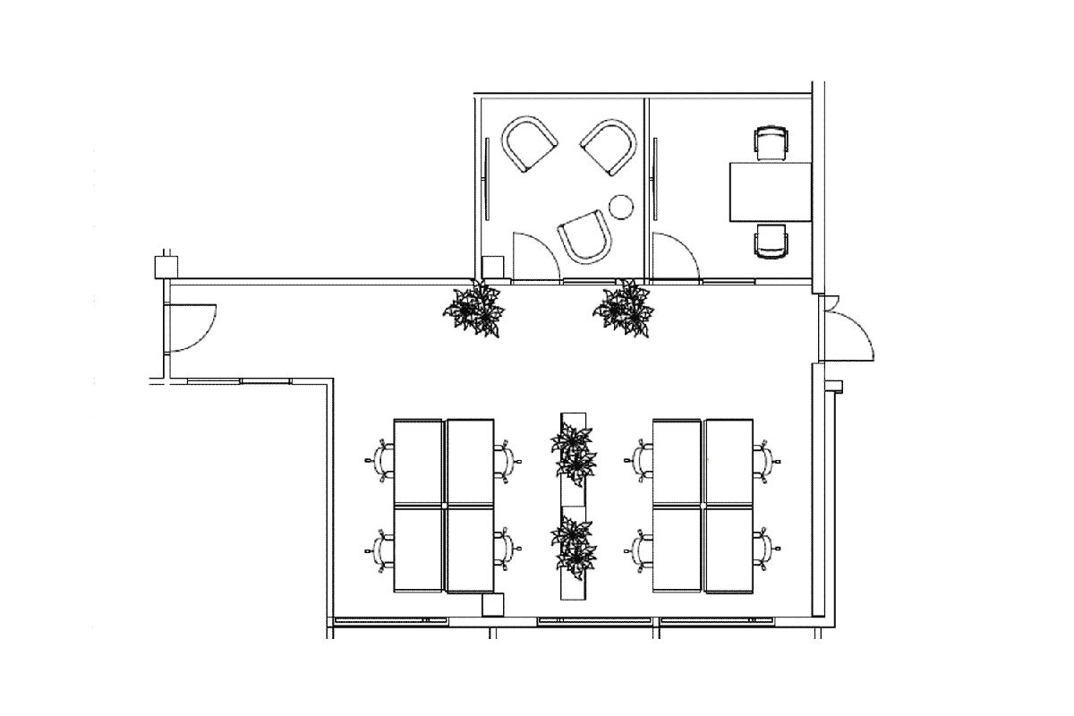
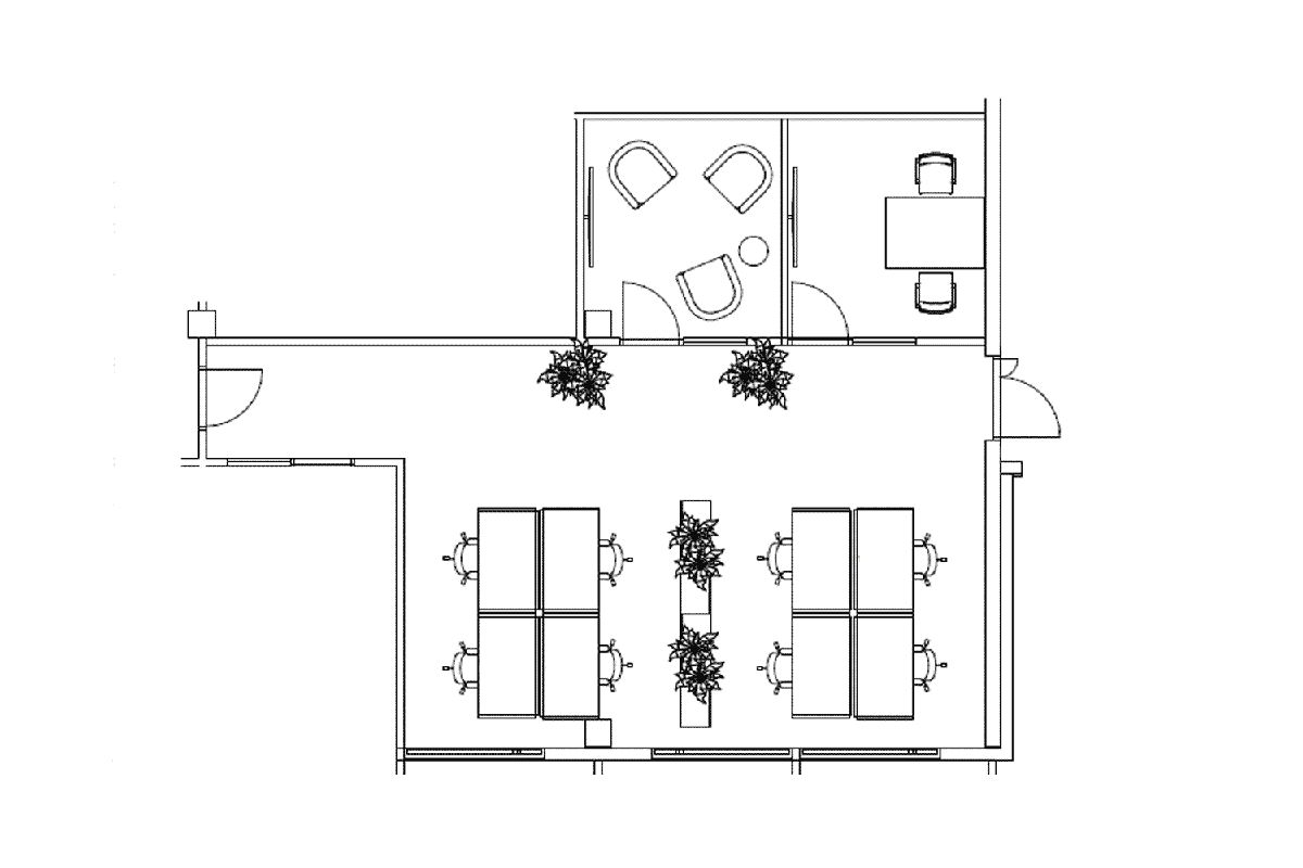
Vuokrattavana toimistotila Technopolis Kontinkankaassa. Technopolis tarjoaa kattavia palvelukokonaisuuksia vuokralaisille. Pohjantien varrella sijaitseva kiinteistö on alle 10 minuutin ajomatkan päässä Oulun ydinkeskustasta. Ilmoitettu neliömäärä sisältää jyvityksen kiinteistön yhteisistä tiloista. Ohessa kuvia tilasta sekä kiinteistön tiloista.
Technopolis Kontinkangas sijaitsee OuluHealth-kampusalueella, joka on terveys- ja hyvinvointiteknologian sekä ICT- palveluiden keskus. Kampuksella toimivissa yrityksissä, korkeakoulussa ja Oulun yliopistollisessa sairaalassa työskentelee yhteensä 8 000 terveysteknologian osaajaa.
Kaikilla kampuksen rakennuksilla on kansainvälinen energia- ja ympäristöhallinnan LEED-sertifikaatti.
Lisätietoja numerosta 020 7290 710. Lisää kohteita osoitteessa www.premises.fi.
Kohteella ei lain edellyttämää energiatodistusta tai energialuokka ei tiedossa.Kerros: 2
CRE PREMISES
Puh. Näytä puhelinnumero 020 7290 710
Vantaankoskentie 14
01670 VANTAA
