Vuokrataan toimistotilat - Helsinki
Hämeentie 15, Sörnäinen, 00500 Helsinki #10842116
Talo on valmistunut vuonna 1958 ja on sen jälkeen nähnyt monta menestyvää yritystä tiloissa. Talon ilme ja tilat kohentuivat huomattavasti kunnostuksen myötä ja mahdollistavat nyt nykyajan työskentelytavat. Taloon on rakennettu sosiaalitilat alakertaan ja aula on remontoitu.
Monitilatoimisto, jossa on useita eri kokoisia huoneita. Talo sijaitsee erinomaisella paikalla Helsingin Sörnäisissä. Ota yhteyttä ja kysy lisää!
Lisätietoja numerosta 020 7290 710. Lisää kohteita osoitteessa premises.fi.
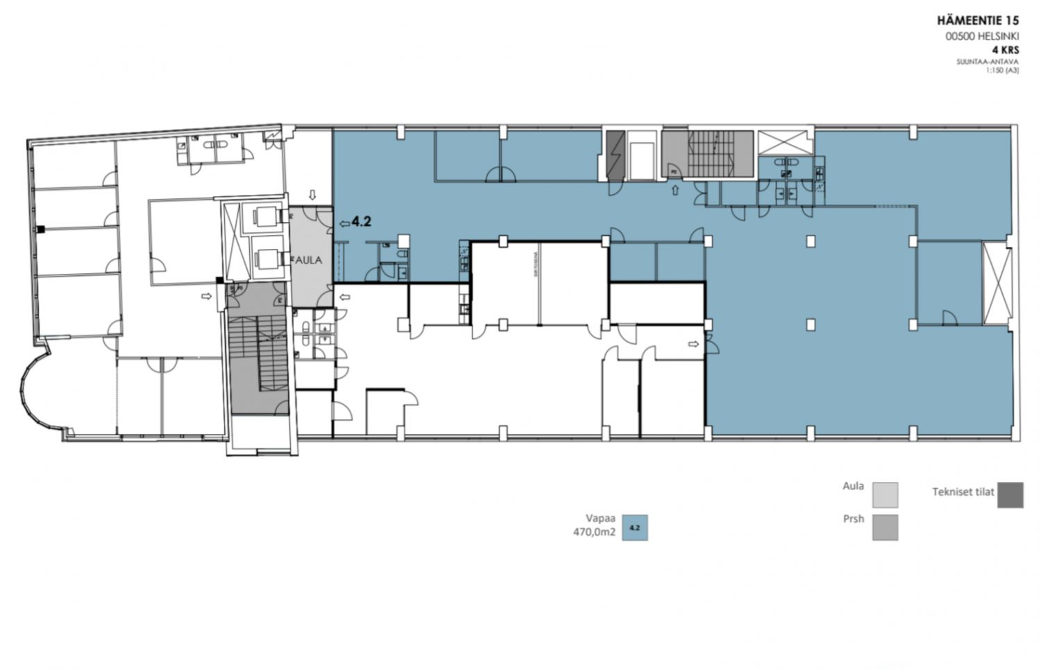
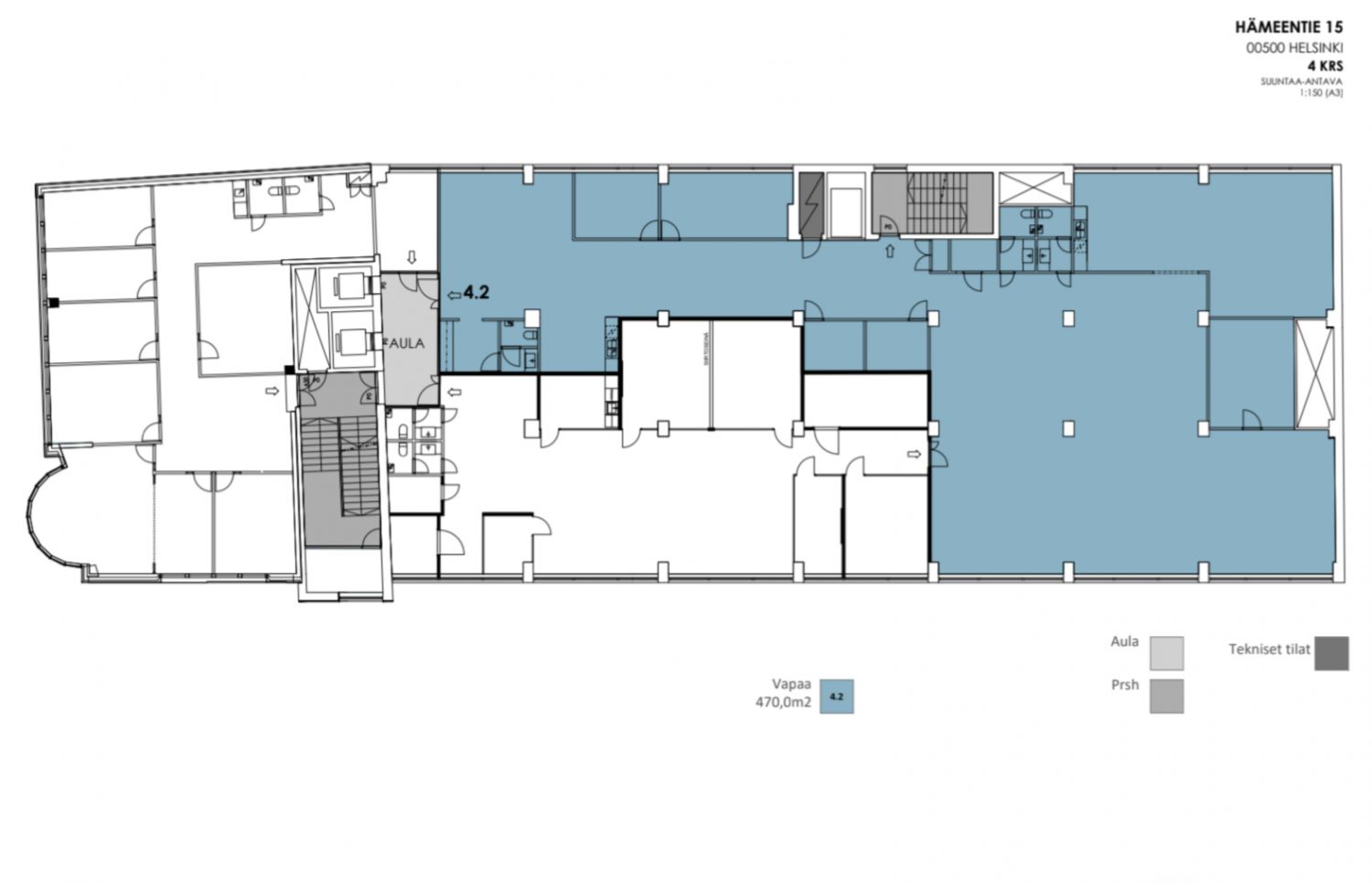
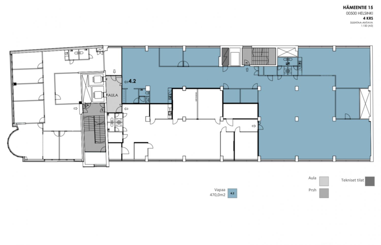
Kohteella ei ole lain edellyttämää energiatodistusta.Kerros: 4
CRE PREMISES
Puh. Näytä puhelinnumero 020 7290 710
Vantaankoskentie 14
01670 VANTAA
