Vuokrataan toimistotilat - Espoo
Puolikkotie 8-10, Matinkylä, 02230 Espoo #10842089
Toimistotilaa Espoossa, kauppakeskus Iso Omenaa vastapäätä.
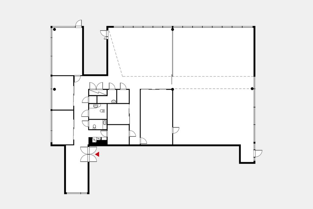
Tämä 403 m² toimisto sijaitsee kiinteistön 8. kerroksessa. Toimistossa on muutama työhuone ja avotilaa. Tila on valoisa, ja siitä on hienot näkymät.
Business Park Safiiri on moderni toimitilakiinteistö Matinkylässä, näkyvällä paikalla Länsiväylän varrella aivan Ison Omenan kauppakeskuksen kupeessa. Sijainti on yksi Espoon vahvimmista. Matinkylän metroasema on viiden minuutin kävelymatkan päässä, bussipysäkki löytyy käytännössä ovelta ja Isoon Omenaan pääsee kahdessa minuutissa. Helsingin keskustaan pääsee autolla noin varttitunnissa. Tilavat autoparkki- ja pyöräparkkitilat palvelevat niin autoilevia kuin pyöräileviäkin.
Toimitilat ovat yksilöllisesti muokattavissa yrityksen tarpeiden mukaan. Talon palveluihin kuuluvat aulapalvelu, ravintola, kuntosali sekä vuokrattavat neuvottelutilat. Kiinteistöllä on BREEAM In-Use (Very Good) -ympäristösertifikaatti.
Kysy lisää numerosta 044 723 4700 tai info@bref.fi. Palvelumme on tilanhakijoille ilmainen.
Bureau Real Estate Finland Oy
Lars Sonckin kaari 16, 02600 Espoo
Näytä puhelinnumero
0447234700
Bureau Real Estate Finland Oy
https://www.bref.fi