Vuokrataan toimistotilat - Helsinki
Lautatarhankatu 6, Sörnäinen, 00580 Helsinki #10842064
Viihtyisä monitilatoimisto Lindström-talon kolmannessa kerroksessa. Tilassa on sekä avotilaa että muutamia huoneita, pohjaratkaisu muokataan vuokralaiselle sopivaksi. Kiinteistössä jäähdyttävä ilmastointi, CAT-6 tietoliikenneverkko, vastaanotto-/aulapalvelu, sähköinen kulunvalvonta, ravintola, neuvottelutiloja, auditorio, autohalli. Ota yhteyttä ja sovi esittely, vuokrauspalvelumme on tilanhakijalle maksuton.
Osoite
Lautatarhankatu 6, 00580 Helsinki
Tilatyyppi
Toimistotilaa
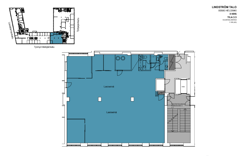
256 m2
Tilajako
Jaettavissa
Pohjapiirros
Kiinteistö
Kiinteistön aula-, ravintola- ja neuvottelutilat uudistettiin syksyllä 2024. Uudistus tehtiin vastuullisesti hiilijalanjälkeä seuraten, materiaaleja kierrättäen, toiminnallisuutta korostaen sekä uutta luoden. Talon pitkä historia näkyy tyylikkäinä yksityiskohtina.
Sijainti
Kehittyvällä Kalasataman alueella.
Pysäköinti
Autohallissa ja sisäpihalla.
Palvelut
Kaikki lähietäisyydellä, Redi 300m.
Kulkuyhteydet
Kalasataman metro-asema, linja-autot, raitiovaunut.
Vapautuu
Heti
Rakennusvuosi
1901
Saneerausvuosi
2003
Kerros
3 / 5
Energiatehokkuusluokka
Ei lain edellyttämää energiatodistusta
Näkyvällä paikalla
Jaettavissa
Hissi
Ota yhteyttä
Senaatin Notariaatti Oy LKV
Lämmittäjänkatu 4 A
FIN-00880 Helsinki
Tel:
Näytä puhelinnumero
+358 9 7745 100
Pyydä lisätietoa
