Lataa pohjapiirros [PDF]
Pohjapiirros
Vuokrataan toimistotilat - Helsinki
Hermannin rantatie 8, Sörnäinen, 00580 Helsinki #10842004
Vuokrattavana valoisa toimistotila Arkkitehtitoimisto SARC:n suunnittelemasta huippumodernista toimistokiinteistöstä, jossa on huomioitu kaikki tulevaisuuden yrityksen toimintaympäristön vaatimukset. Tilan pohjaratkaisu rakennetaan vuokralaiselle sopivaksi. Tila voidaan jakaa kahteen osaan, esaim. n 600 m2/455 m2 tai n. 660 m2/385 m2. Huom. Kuvat ovat yleiskuvia kiinteistön tiloista. Ota yhteyttä ja sovi esittely, vuokrauspalvelumme on tilanhakijoille maksuton.
Osoite
Hermannin rantatie 8, 00580 Helsinki
Tilatyyppi
Toimistotilaa
385 m2
Tilajako
Jaettavissa
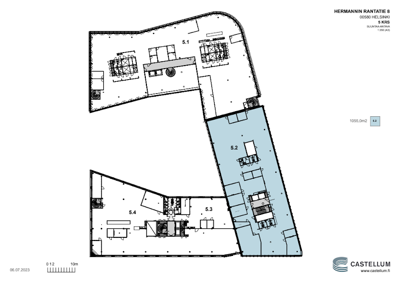
5.krs 1055 m2 voidaan jakaa esim. 600 m2/455 m2 tai n. 660 m2/385 m2.
Pohjapiirros
Kiinteistö
Innovatiivisen rakennuksen tekniikka-, ergonomia- ja sisustusratkaisut ovat edistyksellisiä.Tilat ovat muuntojoustavia ja niitä voidaan tarvittaessa muokata käyttäjän muuttuvien tarpeiden mukaan.
Talon palveluista mainittakoon; - aulapalvelu-, 12 erikokoista neuvottelu-, kokous- ja koulutustilaa-, ravintola ja cateringpalvelu-, autohalli, ym.
Talon palveluista mainittakoon; - aulapalvelu-, 12 erikokoista neuvottelu-, kokous- ja koulutustilaa-, ravintola ja cateringpalvelu-, autohalli, ym.
Sijainti
Kehittyvän Kalasataman ja Hermannin rantatien Business-alue.
Pysäköinti
Autohallissa
Kulkuyhteydet
Kalasataman metroasema 250m, raitiovaunut ja bussit.
Muuta
Rantatie Business Park on moderni, linjakas ja tyylikäs talo Kalasataman parhaalla paikalla Hermannin rantatien varrella. Uudet, laadukkaat tilat ovat helposti muunneltavissa vastaamaan hyvinkin erilaisten asiakkaiden tarpeita aina pienyrittäjistä suuryrityksiin. Rantatie Business Park koostuu kolmesta eri osasta: Original, Kasvu ja Loikka. Yhteisten neuvottelutilojen punaisena lankana toimii merihenkisyys.
Vapautuu
Heti
Rakennusvuosi
2017
Kerros
5 / 6
Energiatehokkuusluokka
Ei lain edellyttämää energiatodistusta
Näkyvällä paikalla
Jaettavissa
Hissi
Ota yhteyttä
Senaatin Notariaatti Oy LKV
Lämmittäjänkatu 4 A
FIN-00880 Helsinki
Tel:
Näytä puhelinnumero
+358 9 7745 100
Pyydä lisätietoa
