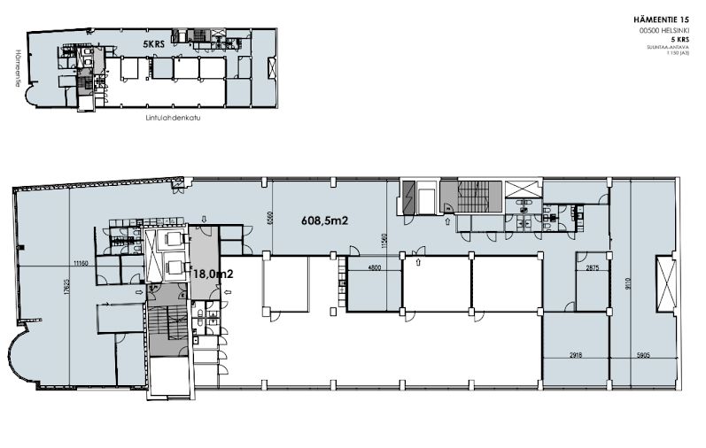
Lataa pohjapiirros [PDF]
Pohjapiirros
Lataa liitetiedosto [PDF]
Liitetiedosto
Vuokrataan toimistotilat - Helsinki
Hämeentie 15, Sörnäinen, 00101 Helsinki #10841992
Näkyvällä paikalla, hyvien liikenneyhteyksien äärellä sijaitseva hyväkuntoinen toimistotila, jossa sekä huoneita että avotilaa. Tila muokataan vuokralaisen tarpeet ja toiveet huomioiden, kuvat ovat esimerkkikuvia kiinteistön tiloista. Ota yhteyttä ja sovi esittely, vuokrauspalvelumme on tilanhakijoille maksuton.
Osoite
Hämeentie 15, 00101 Helsinki
Tilatyyppi
Toimistotilaa
608 m2
Pohjapiirros
Sijainti
Kalllio-Sörnäinen, Hämeentien varrella.
Pysäköinti
Kiinteistössä autohalli.
Palvelut
Hyvät
Kulkuyhteydet
Bussit, raitiovaunut, Sörnäisten metroasema.
Vapautuu
Heti
Kerros
5 / 7
Energiatehokkuusluokka
Ei lain edellyttämää energiatodistusta
Näkyvällä paikalla
Hissi
Liitetiedostot
Ota yhteyttä
Senaatin Notariaatti Oy LKV
Lämmittäjänkatu 4 A
FIN-00880 Helsinki
Tel:
Näytä puhelinnumero
+358 9 7745 100
Pyydä lisätietoa
