Vuokrataan toimistotilat - Kempele
Vihikari 10, Oulun Lentokentän Läheisyydessä, 90440 Kempele #10841885
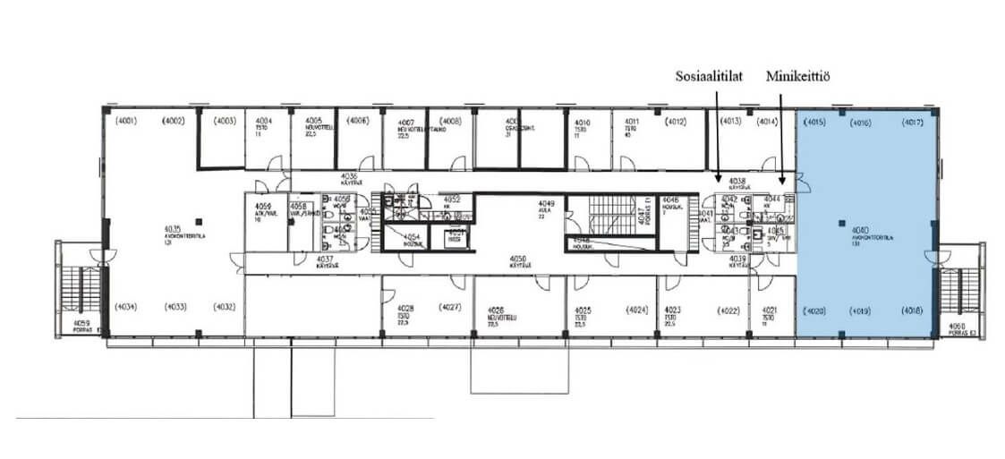
Vuokrattavaksi vapautumassa erinomainen toimistohuone neljännestä kerroksesta. Toimitila vapautuu 1.4.2026. Toimitilan sijainti on loistava lentokentän ja kattavien palveluiden läheisyydessä. Kiinteistön pihassa hyvät pysäköintimahdollisuudet.
Osoite
Vihikari 10, 90440 Kempele
Tilatyyppi
Toimistotilaa
131 m2
Kiinteistö
Toimitilat Kempele,
vuokrataan toimisto 131 m², Kempele
Vuokrattavaksi vapautumassa erinomainen toimistohuone neljännestä kerroksesta. Toimitila vapautuu 1.4.2026.
Toimitilan sijainti on loistava lentokentän ja kattavien palveluiden läheisyydessä.
Kiinteistön pihassa hyvät pysäköintimahdollisuudet.
vuokrataan toimisto 131 m², Kempele
Vuokrattavaksi vapautumassa erinomainen toimistohuone neljännestä kerroksesta. Toimitila vapautuu 1.4.2026.
Toimitilan sijainti on loistava lentokentän ja kattavien palveluiden läheisyydessä.
Kiinteistön pihassa hyvät pysäköintimahdollisuudet.
Palvelut
Aulapalvelu, lounasravintola, neuvottelutilat, saunaosasto
Vapautuu
Kysy
Rakennusvuosi
2000
Ota yhteyttä
Sagax Finland
Aleksanterinkatu
Näytä puhelinnumero
19 00100
HELSINKI
Näytä puhelinnumero
010 3200 320
Pyydä lisätietoa
