Vuokrataan tuotantotilat - Espoo
Koskelontie 20, Koskelo, 02920 Espoo #10841881
Koskelontie 20
Osoite
Koskelontie 20, 02920 Espoo
Tilatyyppi
Tuotantotilaa
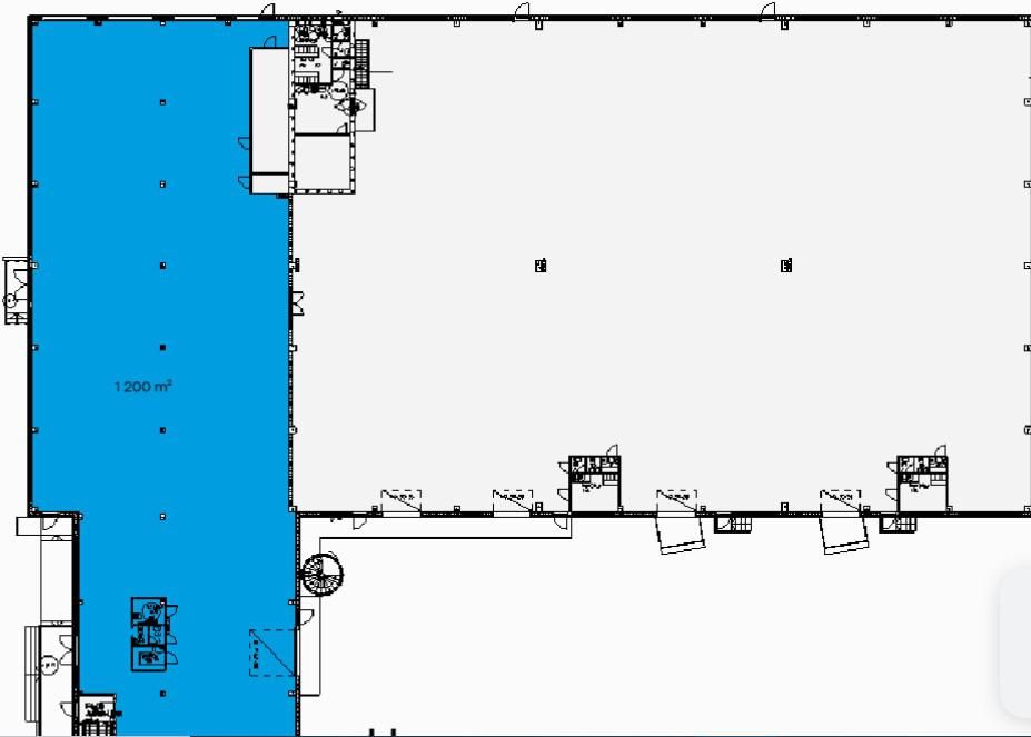
1200 - 1257 m2
Kiinteistö
Vuokrattavana tuotanto- ja varastotilaa 1 200 –
1 257 m² – Erinomainen sijainti Kehä III:n varrella
Tarjolla joustavaa ja muunneltavaa varastotilaa Koskelontie 20:ssä, Espoossa. Kiinteistö sijaitsee loistavalla paikalla aivan Kehä III:n kupeessa, mikä takaa erinomaiset kulkuyhteydet pääkaupunkiseudun kaikkiin suuntiin.
Tilat soveltuvat monipuolisesti eri toimialojen tarpeisiin – varaston yhteydessä on myös toimisto- ja sosiaalitiloja, jotka tukevat tehokasta ja mukavaa työskentelyä. Vapaa korkeus 3–4 metriä. Tilaan on nosto-ovi. Tila voidaan jakaa.
Tule ja hyödynnä sijainnin tuoma logistinen etu – ota yhteyttä ja sovi esittely!
Kiinnostuitko?
Ota yhteyttä ja varaa esittelyaika – katsotaan yhdessä, miten tila voisi palvella juuri sinun liiketoimintaasi!
1 257 m² – Erinomainen sijainti Kehä III:n varrella
Tarjolla joustavaa ja muunneltavaa varastotilaa Koskelontie 20:ssä, Espoossa. Kiinteistö sijaitsee loistavalla paikalla aivan Kehä III:n kupeessa, mikä takaa erinomaiset kulkuyhteydet pääkaupunkiseudun kaikkiin suuntiin.
Tilat soveltuvat monipuolisesti eri toimialojen tarpeisiin – varaston yhteydessä on myös toimisto- ja sosiaalitiloja, jotka tukevat tehokasta ja mukavaa työskentelyä. Vapaa korkeus 3–4 metriä. Tilaan on nosto-ovi. Tila voidaan jakaa.
Tule ja hyödynnä sijainnin tuoma logistinen etu – ota yhteyttä ja sovi esittely!
Kiinnostuitko?
Ota yhteyttä ja varaa esittelyaika – katsotaan yhdessä, miten tila voisi palvella juuri sinun liiketoimintaasi!
Vapautuu
Kysy
Kerros
1. kerros
Ota yhteyttä
Logistila Oy
Kylätie 11-13, 00320 HELSINKI
Rauno Nurmi
Näytä puhelinnumero
050 5522 683
Pyydä lisätietoa
