Vuokrataan toimistotilat - Helsinki
Meritullinkatu 1 C, Kruununhaka, 00170 Helsinki #10841868
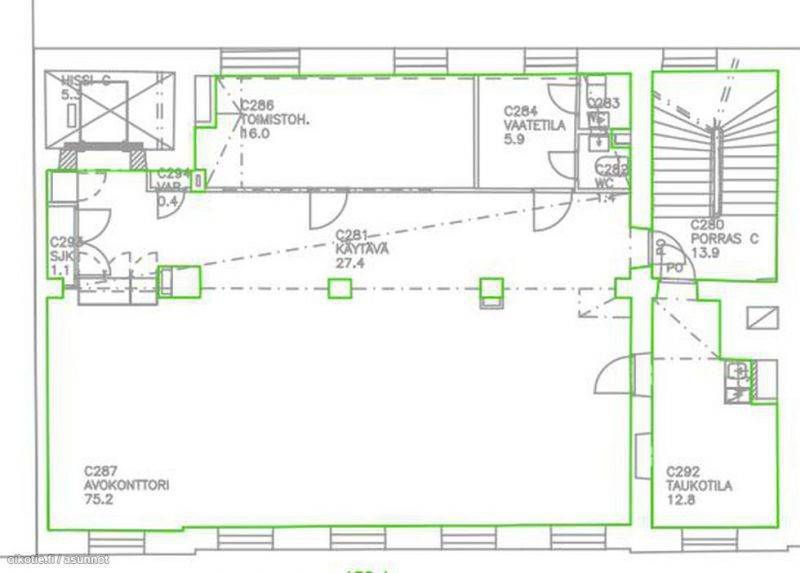
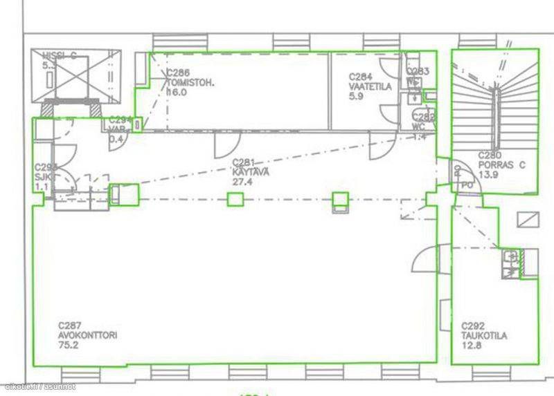
Hyväkuntoinen 138 m² avotoimisto Kruununhaassa.
Osoite
Meritullinkatu 1 C, 00170 Helsinki
Tilatyyppi
Toimistotilaa
138 m2
Pohjapiirros
Kiinteistö
Persoonallista toimistotilaa upealla paikalla Kruununhaassa.
Hyväkuntoinen 138 m² avotoimisto jossa myös muutama huone ja keittiö.
Huonekorkeus 3,3 m
Hyväkuntoinen 138 m² avotoimisto jossa myös muutama huone ja keittiö.
Huonekorkeus 3,3 m
Palvelut
Viihtyisällä Kruununhaan alueella on paljon hyviä ravintoloita ja kivijalkaputiikkeja.
Kulkuyhteydet
Raitiovaunu- ja bussipysäkit sijaitsevat lyhyen kävelymatkan päässä.
Vapautuu
Heti
Kerros
2
Energiatehokkuusluokka
Ei lain edellyttämää energiatodistusta
Hissi
Ota yhteyttä
ScanReal Oy LKV
Opus Business Park
Hitsaajankatu 24
00810 Helsinki
info@scanreal.fi
Puh:
Näytä puhelinnumero
020 730 8830
Sopivat toimitilat yhdellä otolla!
Kartoitamme toimitilatarpeesi ja etsimme yrityksellesi parhaiten sopivat vapaat toimitilat. Koska vuokranantajat maksavat palvelumme, on tämä yrityksellesi veloituksetonta.
OTA YHTEYTTÄ - SOVI NÄYTTÖ!
Kaikki kohteemme eivät ole netissä, kerro tilatarpeesi niin kartoitamme vaihtoehdot.
Palvelumme on tilanhakijalle ilmainen
Pyydä lisätietoa
