Vuokrataan varastotilat - Helsinki
KOY Helsingin Suutarilan Talliosake 2 tila 34 – parvi, wc, Lampputie 12, Suutarila, 00750 Helsinki #10841864
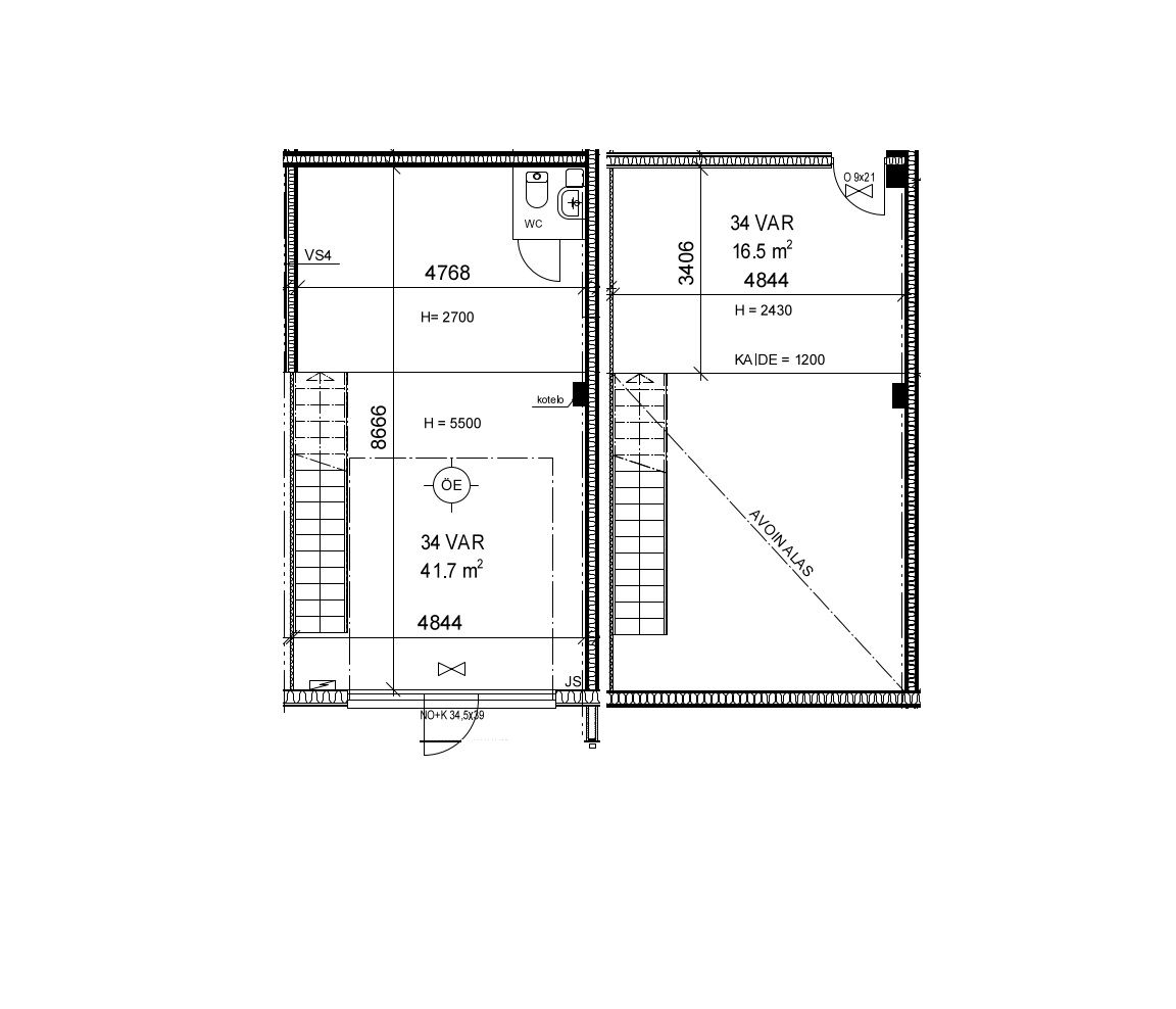
Helsingin Suutarilan Talliosake 2 monikäyttöinen varasto, autotalli, harraste-, toimitila 34. Tilassa jo valmiina parvi sekä wc.
Osoite
Lampputie 12, 00750 Helsinki
Tilatyyppi
Varastotilaa
59 m2
Vuokra
852 € / kk
Kiinteistö
KOY Helsingin Suutarilan Talliosake 2
Sijainti
Helsingin Suutarilan Talliosakkeen sijainti huippupaikalla, hyvien kulkuyhteyksien äärellä, palvelee mitä parhaiten myös yritysasiakkaita.
Muuta
Tilan lattiapinta-ala on 42 m² ja parven 17 m². Yhteispinta-ala 59 m².
Moottoroitu nosto-ovi erillisellä käyntiovella. Autolla sisään ajettava tila. Tilamitat: 8,65 (Pituus) 4,80 (Leveys) 5,50 (Korkeus). Ovimitat: 3,45 (Leveys) 3,90 (Korkeus).
Käyttötarkoitusesimerkkejä: - toimitila - varastotila - yrityksen työtarvikevarasto / kalustovarasto - kimppatalli - harrastetila - bändikämppä - autotalli - moottoripyörätalli - mönkijätalli. Tila ei sovellu autokorjaamoksi eikä autopesulaksi.
Tila on sähkölämmitteinen. Vuokralainen tekee tilaan oman sähkösopimuksen. Vesi- ja sähkömaksu kulutuksen mukaan. Vakuus kahden kuukauden vuokraa vastaava määrä. Haetaan pitkäaikaista vuokralaista. Yritysasiakkaille vuokraan lisätään alv 25,5%. Luottotiedot tarkistetaan.
Moottoroitu nosto-ovi erillisellä käyntiovella. Autolla sisään ajettava tila. Tilamitat: 8,65 (Pituus) 4,80 (Leveys) 5,50 (Korkeus). Ovimitat: 3,45 (Leveys) 3,90 (Korkeus).
Käyttötarkoitusesimerkkejä: - toimitila - varastotila - yrityksen työtarvikevarasto / kalustovarasto - kimppatalli - harrastetila - bändikämppä - autotalli - moottoripyörätalli - mönkijätalli. Tila ei sovellu autokorjaamoksi eikä autopesulaksi.
Tila on sähkölämmitteinen. Vuokralainen tekee tilaan oman sähkösopimuksen. Vesi- ja sähkömaksu kulutuksen mukaan. Vakuus kahden kuukauden vuokraa vastaava määrä. Haetaan pitkäaikaista vuokralaista. Yritysasiakkaille vuokraan lisätään alv 25,5%. Luottotiedot tarkistetaan.
Vapautuu
Heti vapaa
Katutasossa
Ota yhteyttä
Talliosake Oy
Jani Sanevuori
Aluemyyntipäällikkö,
Etelä-Suomi, Vuokrauspalvelu, LVV
Näytä puhelinnumero
050 361 4814
Pyydä lisätietoa
