Vuokrataan toimistotilat - Helsinki
Pursimiehenkatu 29-31, Punavuori, 00150 Helsinki #10841858
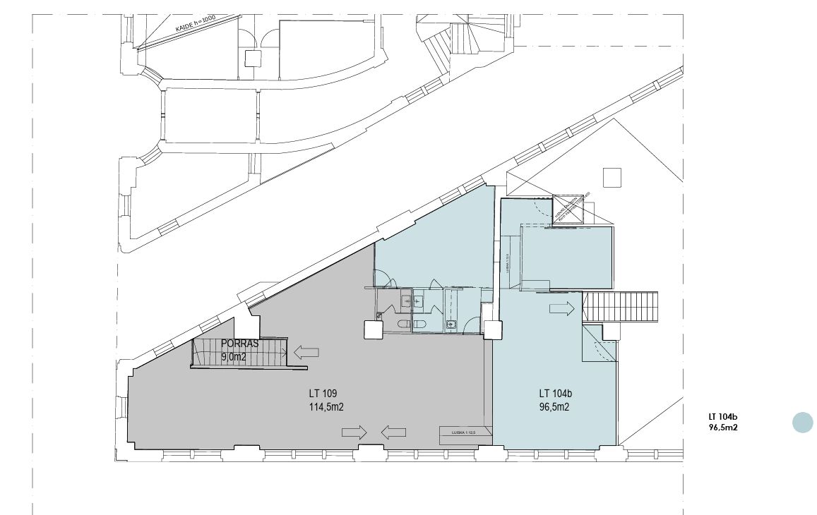
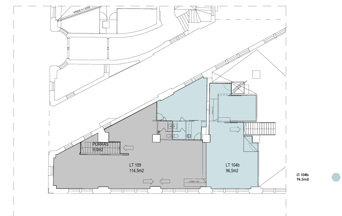
Vapaana ainutlaatuinen 114,5m² ensimmäisen kerroksen toimitila tunnelmallisessa Merikorttelissa, Punavuoressa, jonne on omat portaat suoraan kadulta. Tila sijaitsee Bob's Laundryn yläkerrassa. Tilaan etsitään sopivaa parturi-kampaamoa tai showroomia. Ota yhteyttä ja sovi esittely, vuokrauspalvelumme on tilanhakijoille maksuton.
Osoite
Pursimiehenkatu 29-31, 00150 Helsinki
Tilatyyppi
Toimistotilaa
114 m2
Pohjapiirros
Kiinteistö
KOY Merikortteli
Sijainti
Punavuori
Ympäristö
Kehittyvä Ruoholahden-Hernesaaren rantakortteli.
Pysäköinti
Kiinteistössä autohalli.
Palvelut
Talossa lounasravintola.
Kulkuyhteydet
Erinomaiset bussi- ja ratikkayhteydet.
Vapautuu
Heti
Kerros
1 / 6
Energiatehokkuusluokka
Ei lain edellyttämää energiatodistusta
Hissi
Liitetiedostot
Ota yhteyttä
Senaatin Notariaatti Oy LKV
Lämmittäjänkatu 4 A
FIN-00880 Helsinki
Tel:
Näytä puhelinnumero
+358 9 7745 100
Pyydä lisätietoa
