Vuokrataan toimistotilat - Helsinki
Pursimiehenkatu 29-31, Punavuori, 00150 Helsinki #10841854
Media- ja suunittelutoimistojen keskittymässä vuokrattavana vanhan teollisuustalon henkeen sopiva, nykyajan teknisten vaatimusten mukaan saneerattua, korkeatasoista kombitoimistoa, joka koostuu sekä erillisistä työhuoneista että avotilasta. Tila on muuntojoustava ja siinä on korkeat huoneet. Ota yhteyttä ja sovi esittely, vuokrauspalvelumme on tilanhakijoille maksuton.
Osoite
Pursimiehenkatu 29-31, 00150 Helsinki
Tilatyyppi
Toimistotilaa
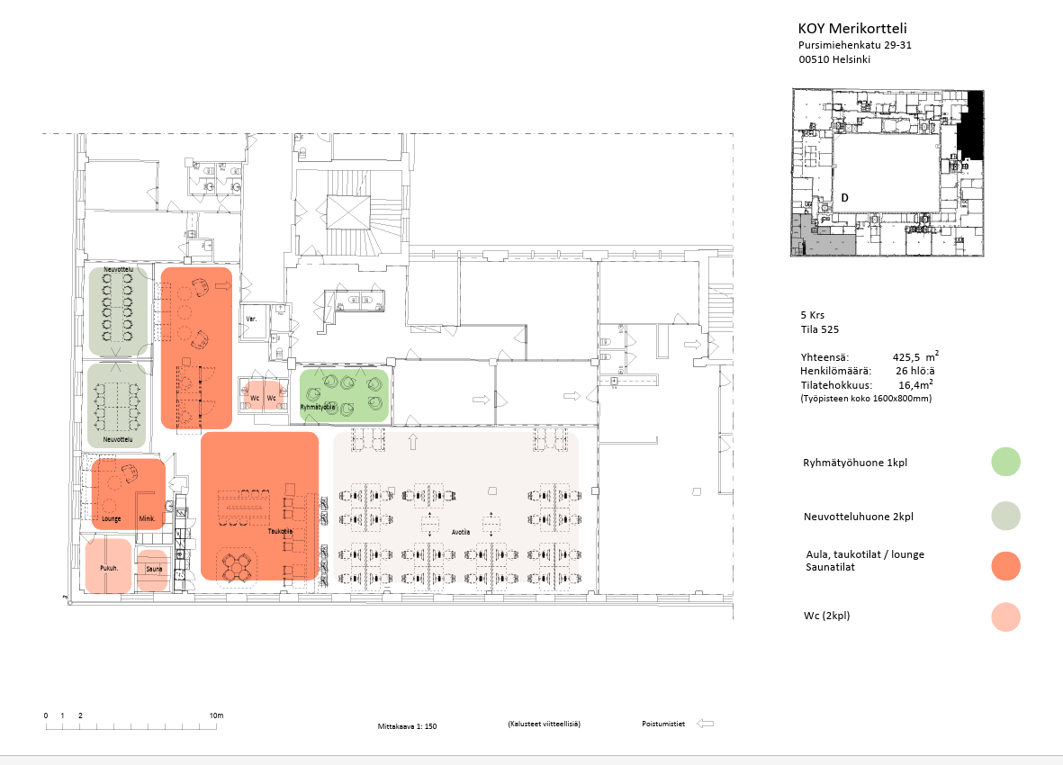
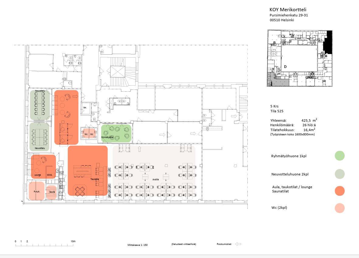
425 m2
Pohjapiirros
Kiinteistö
KOY Merikortteli
Sijainti
Punavuori
Ympäristö
Kehittyvä Ruoholahden-Hernesaaren rantakortteli.
Pysäköinti
Kiinteistössä autohalli.
Palvelut
Talossa lounasravintola.
Kulkuyhteydet
Erinomaiset bussi- ja ratikkayhteydet.
Muuta
Talossa myös tavarahissi, sisäpihalla lastauslaituri.
Vapautuu
Heti
Kerros
5 / 6
Energiatehokkuusluokka
Ei lain edellyttämää energiatodistusta
Hissi
Liitetiedostot
Ota yhteyttä
Senaatin Notariaatti Oy LKV
Lämmittäjänkatu 4 A
FIN-00880 Helsinki
Tel:
Näytä puhelinnumero
+358 9 7745 100
Pyydä lisätietoa
