Vuokrataan - Helsinki
Isosaarenkuja 2-6, Laajasalo, 00840 Helsinki #10841723
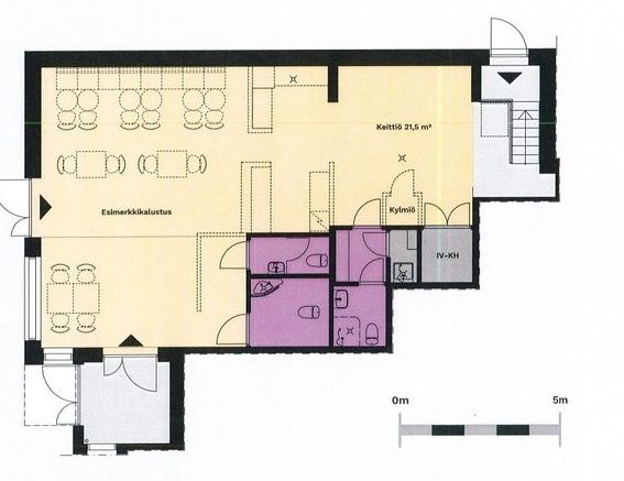
Vuokrattavana katutason liiketila ( 117 m2) uudiskohteesta. Tilassa on varaus ravintolalle.
Osoite
Isosaarenkuja 2-6, 00840 Helsinki
Vapautuu
Kysy
Huoneiden lukumäärä
1
Energiatehokkuusluokka
Ei lain edellyttämää energiatodistusta
Ota yhteyttä
RHG Real Estate
Hämeenkatu 2 B20, 20500 Turku
Heli Reinberg
Näytä puhelinnumero
040 647 4900
Pyydä lisätietoa
