Vuokrataan toimistotilat - Tampere
Kelloportinkatu 1, Tampella, 33100 Tampere #10841718
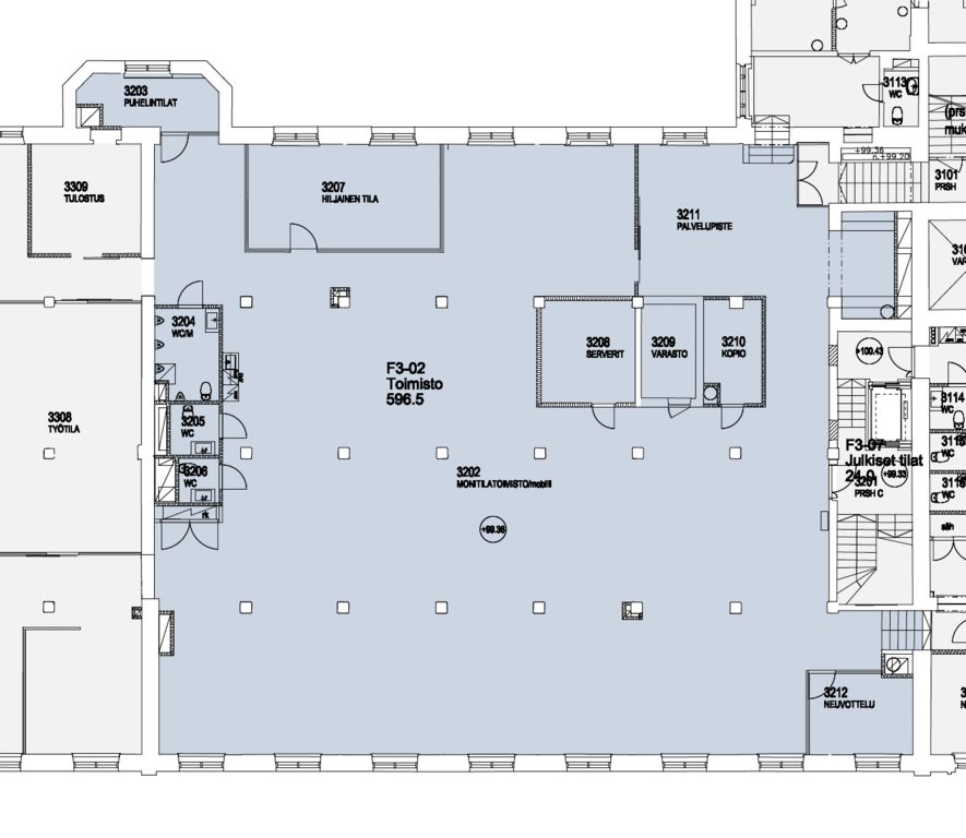
Toimistotilaa Tampereen Tampellassa.
Tämä 596,5 m² toimistotila sijaitsee kiinteistön 3. kerroksessa. Toimisto on pääosin avonainen, ja siihen kuuluvat omat keittiö- ja wc-tilat. Vapautuminen 1.4.2026.
Kelloportinkatu 1 eli Tampellan vanha pellavatehdas sijaitsee hyvällä paikalla, kävelyetäisyyden päässä Tampereen keskustan monipuolisista palveluista. Kiinteistössä on vuokrattavia neuvottelutiloja. Autopaikkoja on mahdollista vuokrata. Kiinteistön tilat on saneerattu vuonna 2017. Tämän korkeatasoisen kohteen ominaisuuksia ovat mm. korkea huonekorkeus ja isot ikkunat. Kiinteistössä toimii ravintola Tampella
Kysy lisää numerosta 044 723 4700 tai info@bref.fi. Palvelumme on tilanhakijoille ilmainen.
Bureau Real Estate Finland Oy
Lars Sonckin kaari 16, 02600 Espoo
Näytä puhelinnumero
0447234700
Bureau Real Estate Finland Oy
https://www.bref.fi