Vuokrataan liiketilat - Helsinki
John Stenbergin ranta 2, Siltasaari, 00530 Helsinki #10841670
Vuokrattavana liiketilaa Siltasaaressa kauniista John S -toimistotalosta.
Osoite
John Stenbergin ranta 2, 00530 Helsinki
Tilatyyppi
Liiketilaa
150 m2
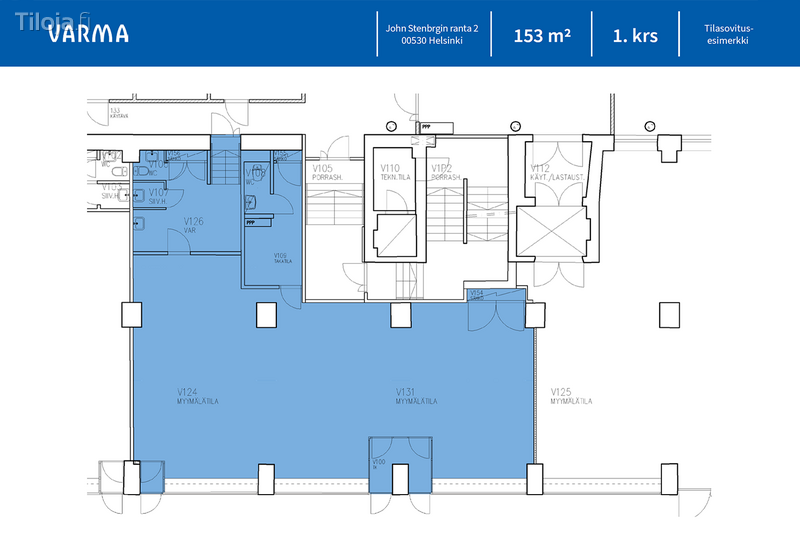
Pohjapiirros
Kiinteistö
Tyylikäs katutason liiketila kauniissa John S -toimistotalossa. Tila ei sovellu ravintolatoimintaan, mutta tarjoaa erinomaiset puitteet monenlaiselle liiketoiminnalle. Kiinteistö sijaitsee keskeisellä paikalla Siltasaaressa, hyvien kulkuyhteyksien varrella.
Toimitilan tiedot
+ Tilatyyppi: Liiketila
+ Pinta-ala: n. 150 m² (jaettavissa 86 m² / 67 m²)
+ Kerros: Katutaso
+ Ei sovellu ravintolatoimintaan!
Tervetuloa tutustumaan tiloihin
Toimitilan tiedot
+ Tilatyyppi: Liiketila
+ Pinta-ala: n. 150 m² (jaettavissa 86 m² / 67 m²)
+ Kerros: Katutaso
+ Ei sovellu ravintolatoimintaan!
Tervetuloa tutustumaan tiloihin
Vapautuu
Heti
Katutasossa
Näkyvällä paikalla
Ota yhteyttä
Arvo Premises Oy
Joakim Kukkonen
Osakas, Toimitilavälittäjä
Näytä puhelinnumero
040 555 8106
Seppo Pakarinen
Osakas, Kiinteistönvälittäjä. LKV, YKV, AKA
Näytä puhelinnumero
040-703 8000
Pyydä lisätietoa
