Vuokrataan toimistotilat - Helsinki
Pursimiehenkatu 29-31, Punavuori, 00150 Helsinki #10841646
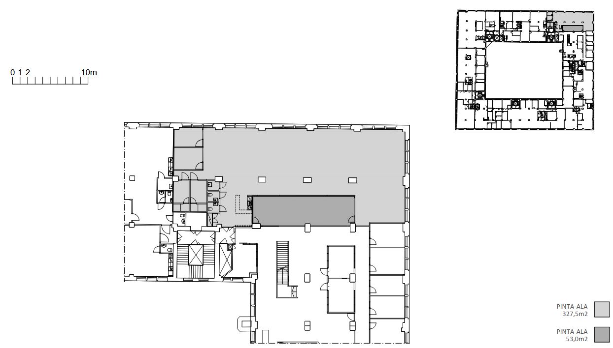
Vapaana 327,5 m² toimistotilaa 2. kerros
Osoite
Pursimiehenkatu 29-31, 00150 Helsinki
Tilatyyppi
Toimistotilaa
326 m2
Kiinteistö
Punavuoren ainutlaatuisessa miljöössä sijaitseva Merikortteli tarjoaa inspiroivan ympäristön yrityksille, jotka arvostavat sekä historiaa että modernia toimivuutta. Nyt vuokrattavana on 327,5 m² kokoinen korkea toimitila, joka soveltuu monenlaiseen käyttöön ja tarjoaa joustavat mahdollisuudet tilaratkaisuihin.
Tilojen tiedot:
327,5 m² toimistotilaa, 2. kerros
Muuttovalmis – heti käyttöön
Soveltuu 10–40 henkilölle
Korkea ja avara tila tunnelmallisessa Merikorttelissa
Tämä toimitila on täydellinen valinta yritykselle, joka etsii inspiroivaa ja muunneltavaa työympäristöä Punavuoren sydämessä.
Tilojen tiedot:
327,5 m² toimistotilaa, 2. kerros
Muuttovalmis – heti käyttöön
Soveltuu 10–40 henkilölle
Korkea ja avara tila tunnelmallisessa Merikorttelissa
Tämä toimitila on täydellinen valinta yritykselle, joka etsii inspiroivaa ja muunneltavaa työympäristöä Punavuoren sydämessä.
Sijainti
Lähistöllä on paljon ravintoloita ja Hietalahden kauppahalli löytyy nurkan takaa. Punavuoreen on hyvät kulkuyhteydet ja Baana sijaitsee ihan vieressä. Merenranta on vain kivenheiton päässä.
Palvelut
Tunnelmallinen Merikortteli on ainutlaatuinen kiinteistö merellisen Punavuoren sydämessä.
Talossa toimii monipuolinen joukko yrityksiä kahvipaahtimoista mainostoimistoihin, jotka yhdessä muodostavat ainutlaatuisen ja eloisan työyhteisön. Keväällä 2022 palvelutarjonta laajentui italialaisesta pizzakulttuurista elävän Forzan ja leipomo-ravintola Levainin myötä. Korttelissa on myös tunnelmallinen elokuvateatteri Riviera. Viime vuosina valtavasti kehittyneellä Telakkakadulla sijaitsevasta Merikorttelista löytyy jo entuudestaan muun muassa kahvipaahtimo-kahvila Kaffa Roastery ja lounasravintola-kahvila Moko Market Café.
Lounasravintola / kahvila
Neuvottelutiloja
Joustotilat
Parkkihalli
Pyöräparkki
Päivittäistavarakauppa
Sähköauton latauspiste
Wellness-palveluita
Talossa toimii monipuolinen joukko yrityksiä kahvipaahtimoista mainostoimistoihin, jotka yhdessä muodostavat ainutlaatuisen ja eloisan työyhteisön. Keväällä 2022 palvelutarjonta laajentui italialaisesta pizzakulttuurista elävän Forzan ja leipomo-ravintola Levainin myötä. Korttelissa on myös tunnelmallinen elokuvateatteri Riviera. Viime vuosina valtavasti kehittyneellä Telakkakadulla sijaitsevasta Merikorttelista löytyy jo entuudestaan muun muassa kahvipaahtimo-kahvila Kaffa Roastery ja lounasravintola-kahvila Moko Market Café.
Lounasravintola / kahvila
Neuvottelutiloja
Joustotilat
Parkkihalli
Pyöräparkki
Päivittäistavarakauppa
Sähköauton latauspiste
Wellness-palveluita
Vapautuu
Heti
Energiatehokkuusluokka
Ei lain edellyttämää energiatodistusta
Katutasossa
Näkyvällä paikalla
Liitetiedostot
Ota yhteyttä
Arvo Premises Oy
Joakim Kukkonen
Osakas, Toimitilavälittäjä
Näytä puhelinnumero
040 555 8106
Seppo Pakarinen
Osakas, Kiinteistönvälittäjä. LKV, YKV, AKA
Näytä puhelinnumero
040-703 8000
Pyydä lisätietoa
