Vuokrataan toimistotilat, liiketilat - Helsinki
Pursimiehenkatu 29-31, Punavuori, 00150 Helsinki #10841644
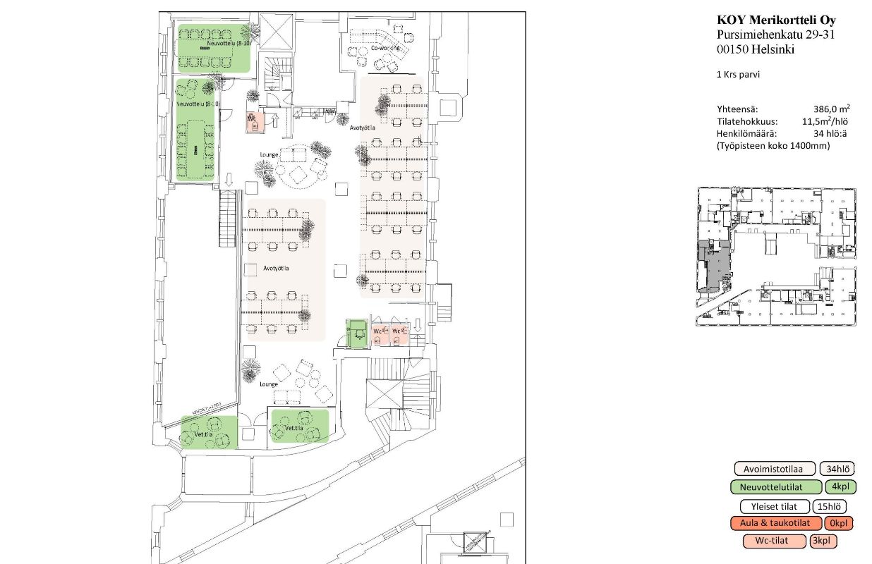
Vapaana toimisto/ liiketilaa Merikorttelissa Punavuoressa n. 730m²
Osoite
Pursimiehenkatu 29-31, 00150 Helsinki
Tilatyyppi
Toimistotilaa
730 m2
Liiketilaa
730 m2
Yhteensä
730 m2
Kiinteistö
Edustava kahden kerroksen toimisto omalla sisäportaikolla – 736 m², Merikortteli
Legendaarisessa Merikorttelissa Punavuoressa on vuokrattavana näyttävä kahden kerroksen toimisto-/liiketila, joka hurmaa edustavuudellaan ja tunnelmallaan. Tilan omat sisäportaat yhdistävät kerrokset tyylikkäästi, ja suuret ikkunat sekä korkea huonekorkeus tekevät ympäristöstä valoisan ja avaran.
Tässä toimitilassa yhdistyvät viihtyisyys ja edustavuus – työntekijät tulevat mielellään paikalle, ja myös asiakkaat viihtyvät.
Tilojen tiedot:
736 m² kahden kerroksen kokonaisuus
Liike- tai ravintolatila, 1. kerros
Soveltuu noin 60 henkilölle
Suuret ikkunat, korkeus ja moderni viihtyisyys
Oma sisäportaikko tuo tilalle näyttävyyttä ja käytännöllisyyttä
Tämä on paraatipaikan toimitila, jossa yrityksesi todella erottuu edukseen.vostaa tilavaa ja inspiroivaa työympäristöä modernissa toimistokokonaisuudessa.
Legendaarisessa Merikorttelissa Punavuoressa on vuokrattavana näyttävä kahden kerroksen toimisto-/liiketila, joka hurmaa edustavuudellaan ja tunnelmallaan. Tilan omat sisäportaat yhdistävät kerrokset tyylikkäästi, ja suuret ikkunat sekä korkea huonekorkeus tekevät ympäristöstä valoisan ja avaran.
Tässä toimitilassa yhdistyvät viihtyisyys ja edustavuus – työntekijät tulevat mielellään paikalle, ja myös asiakkaat viihtyvät.
Tilojen tiedot:
736 m² kahden kerroksen kokonaisuus
Liike- tai ravintolatila, 1. kerros
Soveltuu noin 60 henkilölle
Suuret ikkunat, korkeus ja moderni viihtyisyys
Oma sisäportaikko tuo tilalle näyttävyyttä ja käytännöllisyyttä
Tämä on paraatipaikan toimitila, jossa yrityksesi todella erottuu edukseen.vostaa tilavaa ja inspiroivaa työympäristöä modernissa toimistokokonaisuudessa.
Sijainti
Lähistöllä on paljon ravintoloita ja Hietalahden kauppahalli löytyy nurkan takaa. Punavuoreen on hyvät kulkuyhteydet ja Baana sijaitsee ihan vieressä. Merenranta on vain kivenheiton päässä.
Palvelut
Tunnelmallinen Merikortteli on ainutlaatuinen kiinteistö merellisen Punavuoren sydämessä.
Talossa toimii monipuolinen joukko yrityksiä kahvipaahtimoista mainostoimistoihin, jotka yhdessä muodostavat ainutlaatuisen ja eloisan työyhteisön. Keväällä 2022 palvelutarjonta laajentui italialaisesta pizzakulttuurista elävän Forzan ja leipomo-ravintola Levainin myötä. Korttelissa on myös tunnelmallinen elokuvateatteri Riviera. Viime vuosina valtavasti kehittyneellä Telakkakadulla sijaitsevasta Merikorttelista löytyy jo entuudestaan muun muassa kahvipaahtimo-kahvila Kaffa Roastery ja lounasravintola-kahvila Moko Market Café.
Lounasravintola / kahvila
Neuvottelutiloja
Joustotilat
Parkkihalli
Pyöräparkki
Päivittäistavarakauppa
Sähköauton latauspiste
Wellness-palveluita
Talossa toimii monipuolinen joukko yrityksiä kahvipaahtimoista mainostoimistoihin, jotka yhdessä muodostavat ainutlaatuisen ja eloisan työyhteisön. Keväällä 2022 palvelutarjonta laajentui italialaisesta pizzakulttuurista elävän Forzan ja leipomo-ravintola Levainin myötä. Korttelissa on myös tunnelmallinen elokuvateatteri Riviera. Viime vuosina valtavasti kehittyneellä Telakkakadulla sijaitsevasta Merikorttelista löytyy jo entuudestaan muun muassa kahvipaahtimo-kahvila Kaffa Roastery ja lounasravintola-kahvila Moko Market Café.
Lounasravintola / kahvila
Neuvottelutiloja
Joustotilat
Parkkihalli
Pyöräparkki
Päivittäistavarakauppa
Sähköauton latauspiste
Wellness-palveluita
Vapautuu
Heti
Energiatehokkuusluokka
Ei lain edellyttämää energiatodistusta
Katutasossa
Näkyvällä paikalla
Liitetiedostot
Ota yhteyttä
Arvo Premises Oy
Joakim Kukkonen
Osakas, Toimitilavälittäjä
Näytä puhelinnumero
040 555 8106
Seppo Pakarinen
Osakas, Kiinteistönvälittäjä. LKV, YKV, AKA
Näytä puhelinnumero
040-703 8000
Pyydä lisätietoa
