Vuokrataan varastotilat - Vantaa
Kuussillantie 27, Vaarala, 01230 Vantaa #10841610
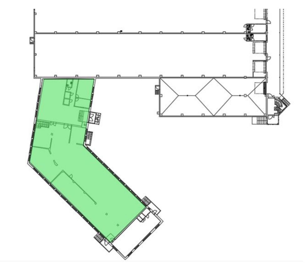
Vuokrattavana katutason tuotanto-/varastotilaa.
Osoite
Kuussillantie 27, 01230 Vantaa
Tilatyyppi
Varastotilaa
623 m2
Kiinteistö
Vuokrattavana tuotanto-/varastotilaa, yhdellä lastaussillalla ja kolmella nosto-ovella. Varaston vapaa korkeus on noin 4 metriä.
Sijainti
Pienteollisuuskiinteistö, joka sijaitsee Vaaralan teollisuusalueella, Kuussillassa.
Pysäköinti
Kiinteistön pihalla.
Kulkuyhteydet
Hyvät liikenneyhteydet Kehä III:lle sekä Porvoon ja Lahden moottoriteille.
Vapautuu
Heti
Kerros
1
Energiatehokkuusluokka
Ei lain edellyttämää energiatodistusta
Katutasossa
Näkyvällä paikalla
Lastauslaituri
Ota yhteyttä
REALIUM OY LKV
Tammasaarenkatu 1, 00180 Helsinki
Vaihde:
Näytä puhelinnumero
010 326 346
Tuomo Mäkelä
tuomo.makela@realium.fi
p.
Näytä puhelinnumero
044 050 1158
Joel Keto
joel.keto@realium.fi
p.
Näytä puhelinnumero
045 317 0330
KAIKKI TILAVAIHTOEHDOT KERRALLA!
SOITA - MEILAA JA TILAA NÄYTTÖ!
Ilmainen palvelu tilanhakijoille.
Kartoitamme parhaat tilavaihtoehdot.
Kaikki kohteet eivät ole netissä.
Pyydä lisätietoa
