Vuokrataan liiketilat - Lohja
Korjaamokuja 3-5, Tynninharju, 08200 Lohja #10841433
Eloisan liikekiinteistön päätytila vapautuu vuoden loppuun mennessa vuokrattavaksi seuraavalle kaupalliselle toimijalle. Tämä kauppapaikka on Lohjan markkina-alueen nopeiten kehittyvän keskittymän ytimessä. Saavutettavuus on hyvä ja isot tunnetut kuluttajabrädit luovat vahvaa päivittäistä vetovoimaa ja asiakasvirtaa alueelle.
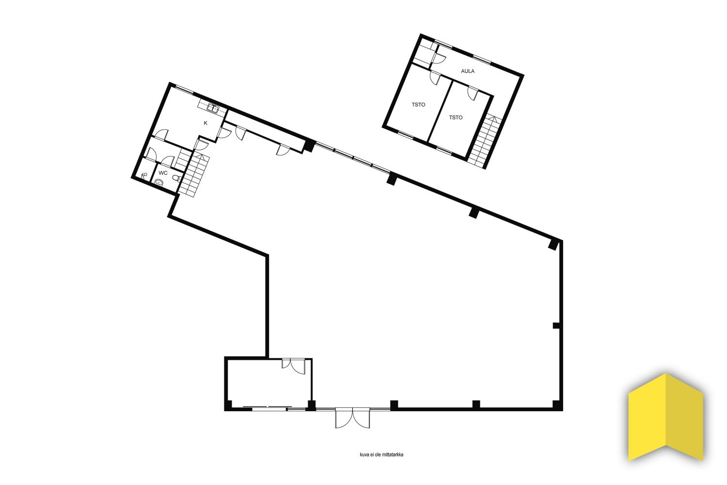
Tilan kokonaispinta-ala on 297,5 m² josta yläkerran kahden toimistohuoneen osuus on 31,5m². Alakerran avoin myymälätila sekä henkilökunnan sosiaalitilat ovat yhteensä 266 m². Isot ikkunapinnat tilan etu- ja takaseinustoilla tekevät tilasta valoisan. Moderni kiinteistö varustettuna nykyaikaisella kiinteistötekniikalla luo perustan houkuttelevalle myymälälle sekä viihtyisälle työpaikalle. Tilan muutostyöt sovittavissa tarpeen mukaan, mutta jo nykymuodossaan se palvelee erinomaisesti. Pihalla reilusti autopaikkoja asiakkaille.
Vuokra muodostuu pääomavuokrasta sekä erillisestä ylläpitovuokrasta, jolla katetaan kiinteistöhuolto-, lämmitys- sekä jätehuollon kustannuksia.
Sovi esittely paikallisen, alueen ja markkinan tuntevan välittäjän kanssa: 041 311 70 30
