Vuokrataan toimistotilat - Tampere
Naulakatu 3, 33100 Tampere #10841306
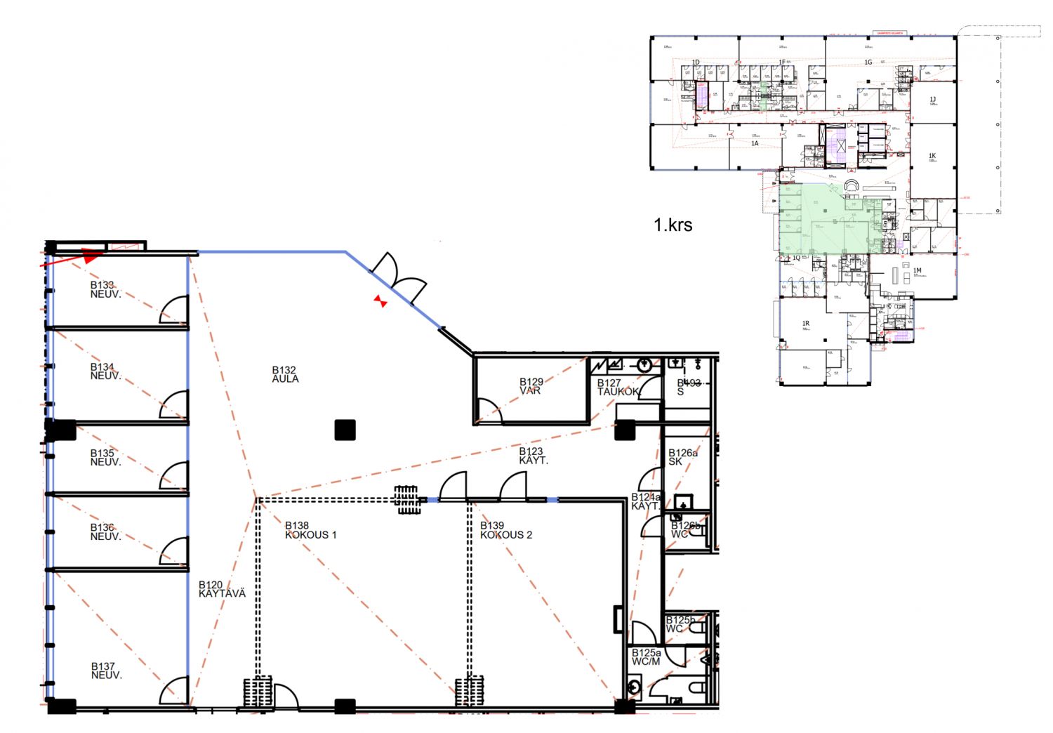
Omistaja vuokraa! Naulakatu 3:ssa 315 m² katutason tila. Rakennamme tilan vuokralaisen toiveiden mukaisesti toimistokäyttöön. Tilassa on tällä hetkellä viisi työhuonetta/pientä neuvottelutilaa sekä avara luentosali, joka voidaan tarvittaessa jakaa kahdeksi erilliseksi tilaksi.
Kiinteistössä on iso lastauslaiturialue ja tavarahissi, jotka mahdollistavat tuotannon tai varastoinnin.
Myös Tampereen yliopisto sijaitsee lähietäisyydellä.
Kiinteistössä vierailijoille on tarjolla kiekkopaikkoja kätevästi aivan pääsisäänkäynnin läheisyydessä.
Polkupyöräpaikkoja lukitussa tilassa sekä lämpimässä autohallissa.
Kiinteistössä on lisäksi kattava kuntosali sekä kaksi saunaa, jotka ovat vuokralaisten käytettävissä veloituksetta.
Vuokralaiset voivat hyödyntää myös aulasta varattavia kokoustiloja, joiden käyttö sisältyy vuokraan ilman lisäkustannuksia.
Kiinteistömme tilat ovat erittäin muuntojoustavia, ja halutessanne toteutamme tiloihin muutoksia vuokralaisten toiveiden mukaisesti. Tavoitteemme on, että toimitilat palvelevat juuri teidän tarpeitanne ja tukevat yrityksenne arkea mahdollisimman hyvin.
Katutasossa
Näkyvällä paikalla
Hissi
Tahoma Oy
Haluamme olla Tampereen alueen lämminhenkisin vuokranantaja, joka aidosti huolehtii vuokralaisistaan. Meille on tärkeää, että niin uudet kuin nykyiset vuokralaiset viihtyvät ja menestyvät. Yhdessä luomme parhaat edellytykset sujuvalle arjelle ja menestyksekkäälle työympäristölle. Kun vuokralaisilla menee hyvin, meilläkin menee hyvin. Ota rohkeasti yhteyttä – kuuntelemme tarpeitanne ja autamme mielellämme.
Jukka Lankinen
Kiinteistöjohtaja
Näytä puhelinnumero
050 4090 228
Tahoma Oy on vuonna 2012 perustettu pirkanmaalaisessa omistuksessa oleva vakavarainen kiinteistösijoitusyhtiö. Omistamme ja vuokraamme toimitiloja liike-, toimisto,- liikunta-, pienteollisuus- ja teollisuuskäyttöön.
https://www.tahoma.fi/