Vuokrataan toimistotilat, muut tilat - Espoo
Keilaranta 1, Keilaniemi, 02150 Espoo #10841287
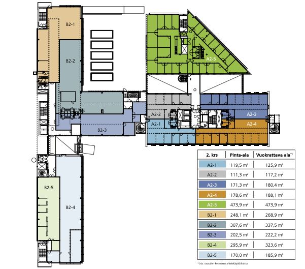
Tyylikäs 2. kerroksen 171,3 m² toimisto kestävän kehityksen periaatteella toteutetussa kiinteistössä meren rannalla, Keilaniemen metroaseman läheisyydessä.
Keilaranta 1 on platinatason kiinteistö Keilaniemen metroaseman yläpuolella. Kestävän kehityksen periaatteella toteutettu toimistokiinteistö sijaitsee upealla paikalla meren rannalla. Keilaranta 1:n uudisosalle on myönnetty LEED®Platina-ympäristösertifikaatti.
Keilaranta 1 tarjoaa hyvät palvelut, joihin sisältyvät kiinteistön neuvotteluhuoneiden ja kuntosalin käyttömahdollisuus sekä lounasravintola ja cateringpalvelut. Keilarannasta löytyy lisäksi kaksi erikseen vuokrattavaa sauna-/edustustilaa.
Joustavasti muunneltavissa olevien toimistohuoneistojen pinta-alat vaihtelevat 117:sta neliöstä 550:een neliöön. Pienempiä tiloja on mahdollista vuokrata kiinteistön toimistohotellista. Talon ensimmäisestä kerroksesta löytyy laaja neuvotteluhuonekeskus, jossa on yhteensä 23 neuvottelutilaa 6:n−200:n henkilön tilaisuuksiin.
Erinomainen sijainti Kehä 1:n ja Länsiväylän vieressä takaa hyvät julkisen liikenteen palvelut. Lisäksi kohteessa on runsaasti pysäköintitilaa henkilökunnan käyttöön.
Näkyvällä paikalla
Hissi
ScanReal Oy LKV
Opus Business Park
Hitsaajankatu 24
00810 Helsinki
info@scanreal.fi
Puh:
Näytä puhelinnumero
020 730 8830
Sopivat toimitilat yhdellä otolla!
Kartoitamme toimitilatarpeesi ja etsimme yrityksellesi parhaiten sopivat vapaat toimitilat. Koska vuokranantajat maksavat palvelumme, on tämä yrityksellesi veloituksetonta.
OTA YHTEYTTÄ - SOVI NÄYTTÖ!
Kaikki kohteemme eivät ole netissä, kerro tilatarpeesi niin kartoitamme vaihtoehdot.
Palvelumme on tilanhakijalle ilmainen
