Vuokrataan tuotantotilat, varastotilat - Espoo
Juvankartanontie 15, Juvanmalmi, 02920 Espoo #10841261
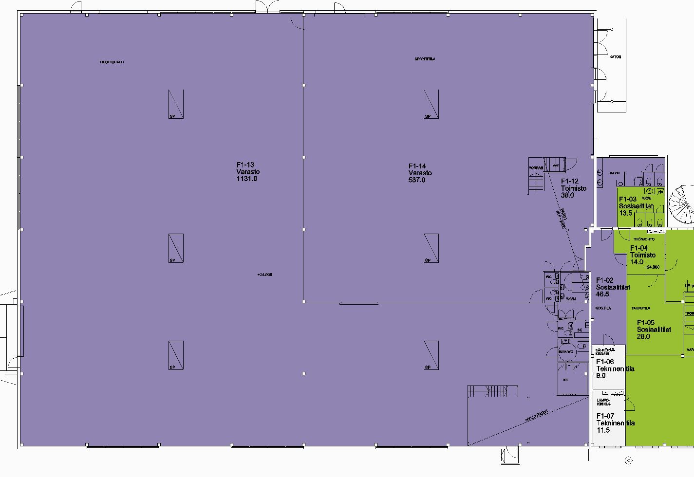
Näkyvällä paikalla Kehä III varrella sijaitseva 1948m2 suuruinen varasto/tuotantotila.
Kaksi sisään ajettavaa hallia, joissa on isot nosto-ovet (4.00m x 4.30m2). Talossa on myös siistikuntoista toimistoa, näyttelytilaa sekä tarpeelliset sosiaalitilat. Noin 2000m2 piha-alue soveltuu monenlaiseen käyttöön. SOITA ja KYSY LISÄÄ: 09 7745 100.
Osoite
Juvankartanontie 15, 02920 Espoo
Tilatyyppi
Tuotantotilaa
1950 m2
Varastotilaa
1950 m2
Yhteensä
1950 m2
Tilajako
Jaettavissa
Pohjapiirros
Kiinteistö
Tuotanto ja varasto.
Sijainti
Kehä III:n varrella, Juvanmalmi.
Pysäköinti
Pihalla runsaasti parkkitilaa.
Palvelut
Lounasravintolat lähellä.
Kulkuyhteydet
Kehä III
Muuta
Lattiakantavuus: uudella puolella vähintään 500 kg/m², vanhan puolen hallissa 1000 kg/m².
Vapautuu
Heti
Katutasossa
Näkyvällä paikalla
Jaettavissa
Ota yhteyttä
Senaatin Notariaatti Oy LKV
Lämmittäjänkatu 4 A
FIN-00880 Helsinki
Tel:
Näytä puhelinnumero
+358 9 7745 100
Pyydä lisätietoa
