Vuokrataan toimistotilat, varastotilat - Helsinki
Seilorinkatu 1, Vuosaari, 00980 Helsinki #10841242
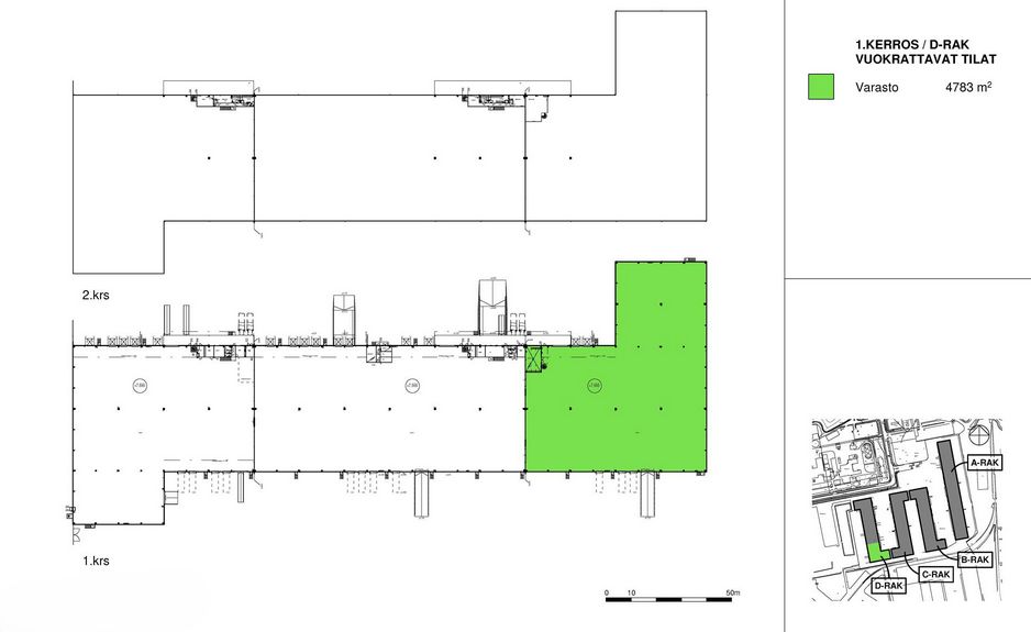
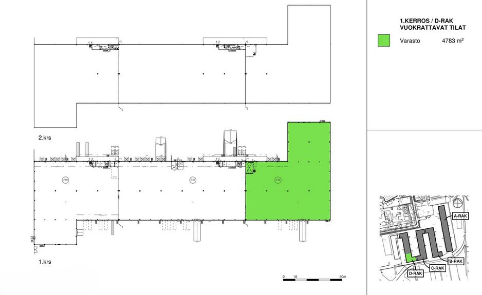
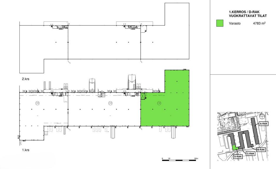
Vuokrataan varastotila, jonka vapaa korkeus on 9 metriä ja lattiakantavuus 5 000 kg/m2. Varastossa on 12 lastaustaskua, lastauslaituri ja ramppi isolla ovella. Tilassa on myös pieni toimisto, sosiaalitilat, keittiö ja taukotila. Lisäksi kiinteistöllä on isot piha-alueet.
Vuosaaren Logistiikkakeskus on osa vuonna 2008 valmistunutta modernia ja nykyaikaista logistiikka-aluetta. Tehokkaat neljässä eri rakennuksessa sijaitsevat varastotilat ovat joustavia ja helposti muunneltavissa erilaisiin asiakkaan tarpeita ja toimintaa tukeviin kokonaisuuksiin. Logistiikkakeskuksesta on saatavilla myös isoja varastotilakokonaisuuksia (jopa 15 000 - 30 000 m2) kilpailukykyiseen hintaan.
Varastotilat voidaan suunnitella palvelemaan mm. läpivirtausterminaalina tai U-kierto ratkaisuna. Tiloihin voidaan toteuttaa asiakkaan toimintaan parhaiten soveltuvat hyllyratkaisut. Varastotilojen vapaa korkeus on 6 - 9 metriä ja lattiakantavuus on 4 000 - 5 000 kg/m2. Purkaus- ja lastaustilat on suunniteltu kontti- ja ajoneuvoliikenteen tarpeita varten. Varastojen yhteyteen voidaan toteuttaa tarvittavat toimisto- ja sosiaalitilat. Viereiseltä tontilta on mahdollista vuokrata traileripaikka.
Helsingin Sataman, Tullin ja satamaoperaattoreiden palvelut sijaitsevat samassa logistiikkakeskuksessa. Tämän kohteen omistaa Logicor Oy.
Lisätietoja numerosta 020 7290 710. Lisää kohteita osoitteessa www.premises.fi.
Kohteella ei ole lain edellyttämää energiatodistusta tai energialuokka ei tiedossa.Kerros: 1
CRE PREMISES
Puh. Näytä puhelinnumero 020 7290 710
Vantaankoskentie 14
01670 VANTAA
