Vuokrataan toimistotilat - Helsinki
Pasilankatu 2, Pasila, 00240 Helsinki #10841240
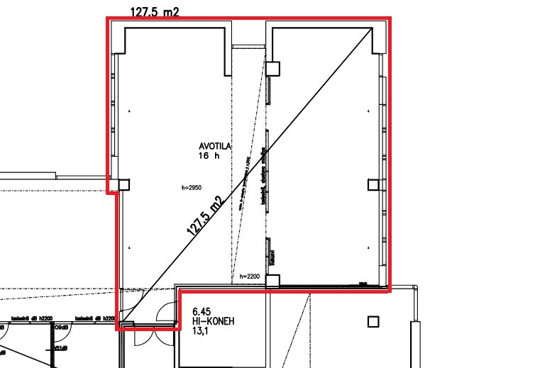
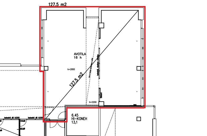
PASILANKATU 2 - toimistotila 127,5m2
Tässä 6. kerroksen toimistotilassa on ison avotilan lisäksi yksi huone, joka ei näy pohjakuvassa.
Yhteiskäyttöiset sosiaalitilat löytyy samasta kerroksesta.
Lisätiedot ja kohdenäytöt: p. 040 7070 321 / HeikkiKerros: 6
Osoite
Pasilankatu 2, 00240 Helsinki
Tilatyyppi
Toimistotilaa
127,5 m2
Kulkuyhteydet
Kaikki PK-seudun paikallisjunat ja Helsinkiin saapuvat kaukojunat parin minuutin kävelymatkan päässä. Raitiovaunu pysäkki vieressä, kuin myös useita bussilinjoja.
Ota yhteyttä
CRE PREMISES
Puh. Näytä puhelinnumero 020 7290 710
Vantaankoskentie 14
01670 VANTAA
Pyydä lisätietoa
