Vuokrataan tuotantotilat, varastotilat - Jyväskylä
Vesangantie 1, 40700 Jyväskylä #10841194
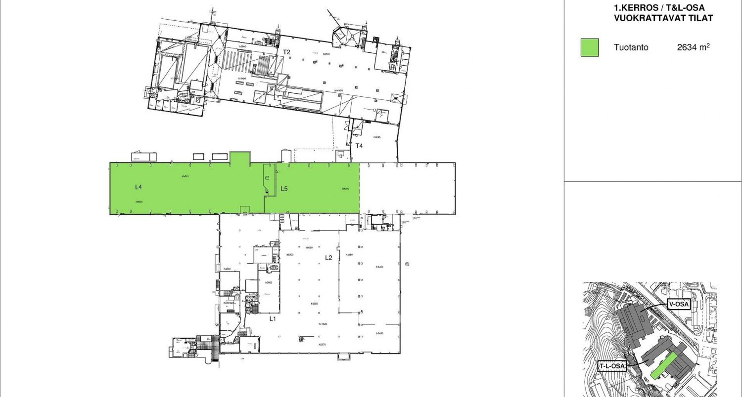
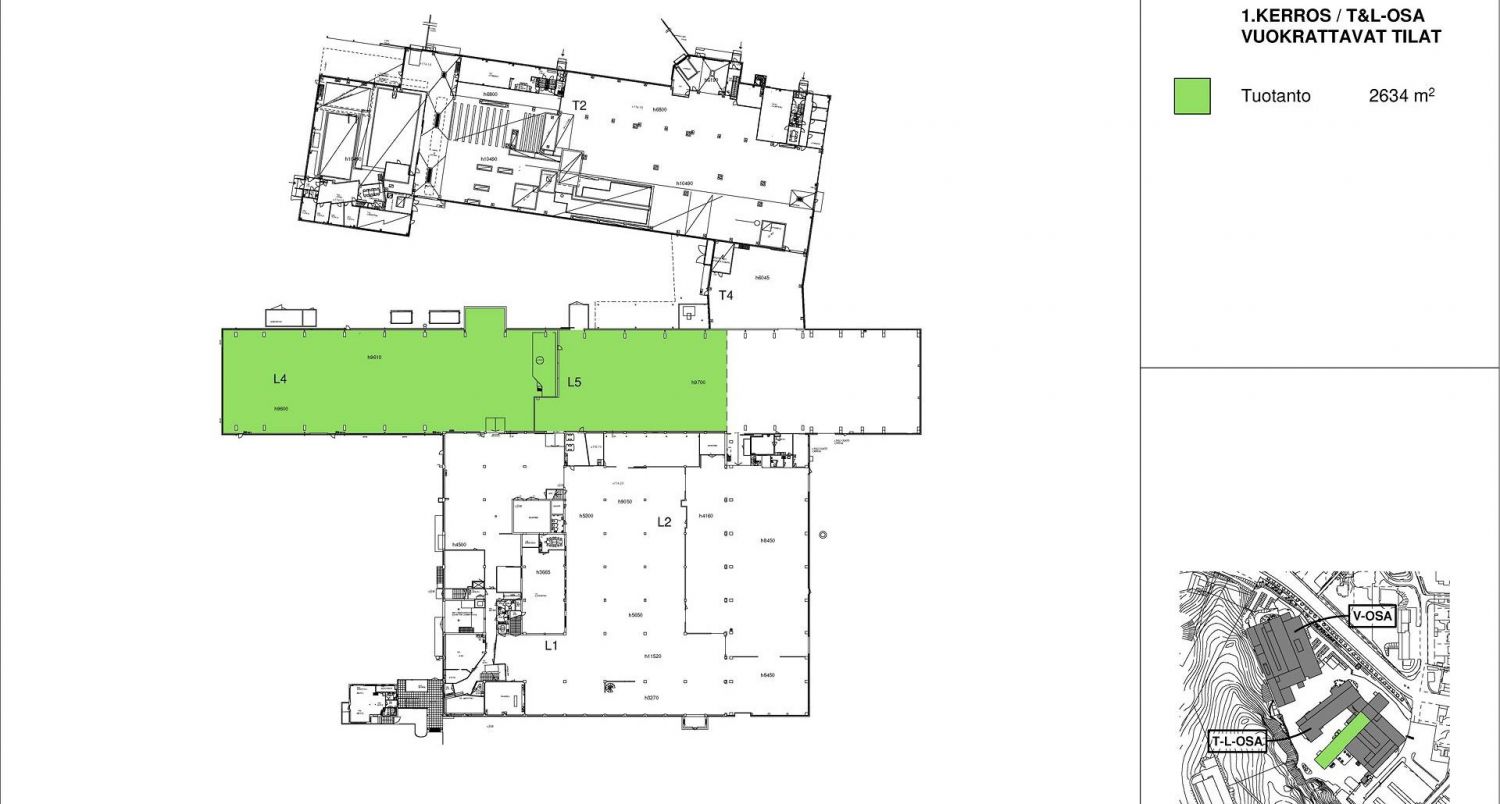
Vuokrattava teollis-tuotannollinen tila, jonka läheisyydessä sisäyhteydellä on vuokrattavissa myös toimistotilaa. Tähän tilaan on maatason nosto-ovi ja tilassa on merkittävästi nostinkapasiteettia. Tilan maksimikorkeus on noin 9.6 metriä.
Kohde sijaitsee Rautpohjan alueella, lähellä Jyväskylän keskustaa hyvien liikenneyhteyksien päässä.
Kohde sijaitsee Rautpohjan alueella, lähellä Jyväskylän keskustaa hyvien liikenneyhteyksien päässä.
Tämän kohteen omistaa Logicor Oy.
Lisätietoja numerosta 020 7290 710. Lisää kohteita osoitteessa www.premises.fi.
Kohteella ei ole lain edellyttämää energiatodistusta tai energialuokka ei tiedossa.
CRE PREMISES
Puh. Näytä puhelinnumero 020 7290 710
Vantaankoskentie 14
01670 VANTAA
