Vuokrataan toimistotilat - Helsinki
Koivuvaarankuja 2, Ärrävaara, 01640 Helsinki #10841083
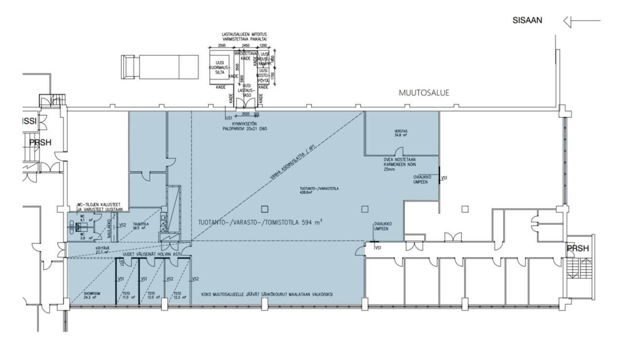
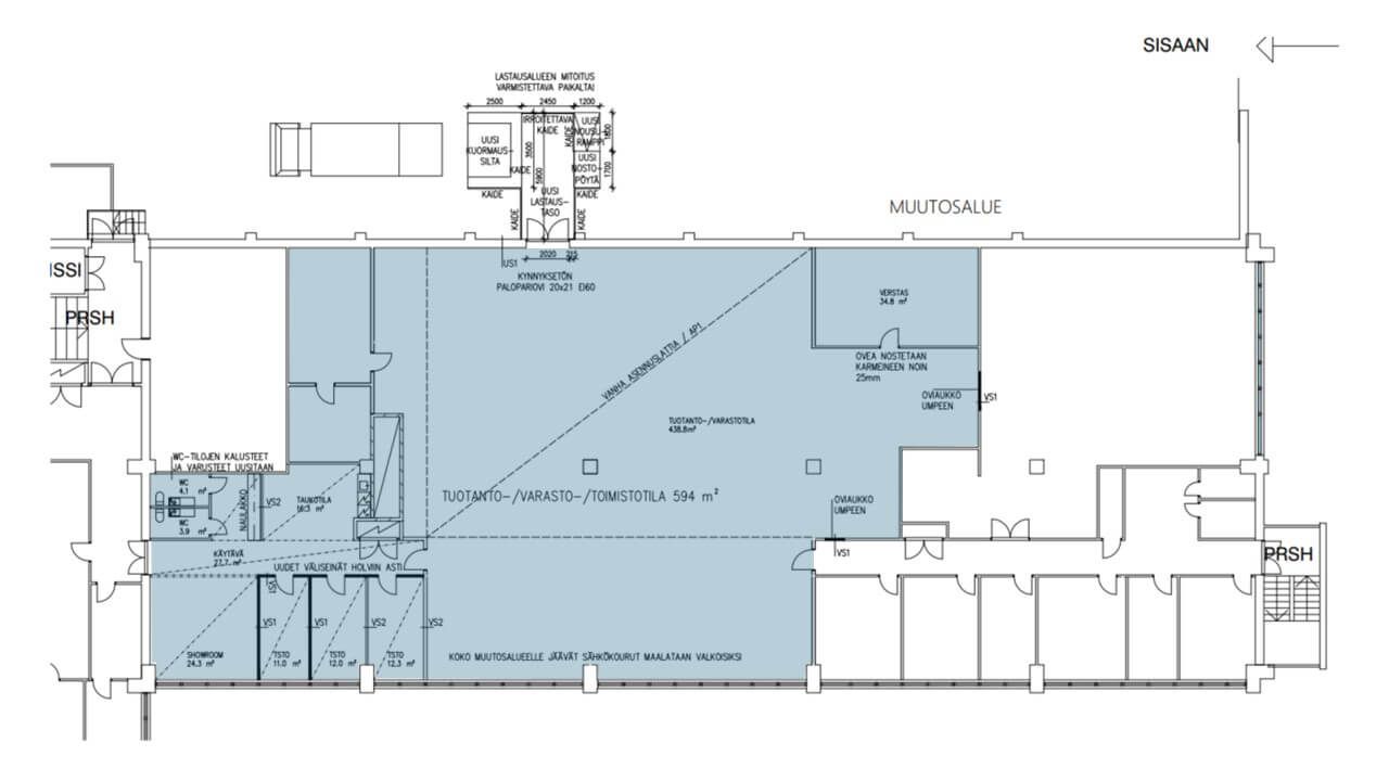
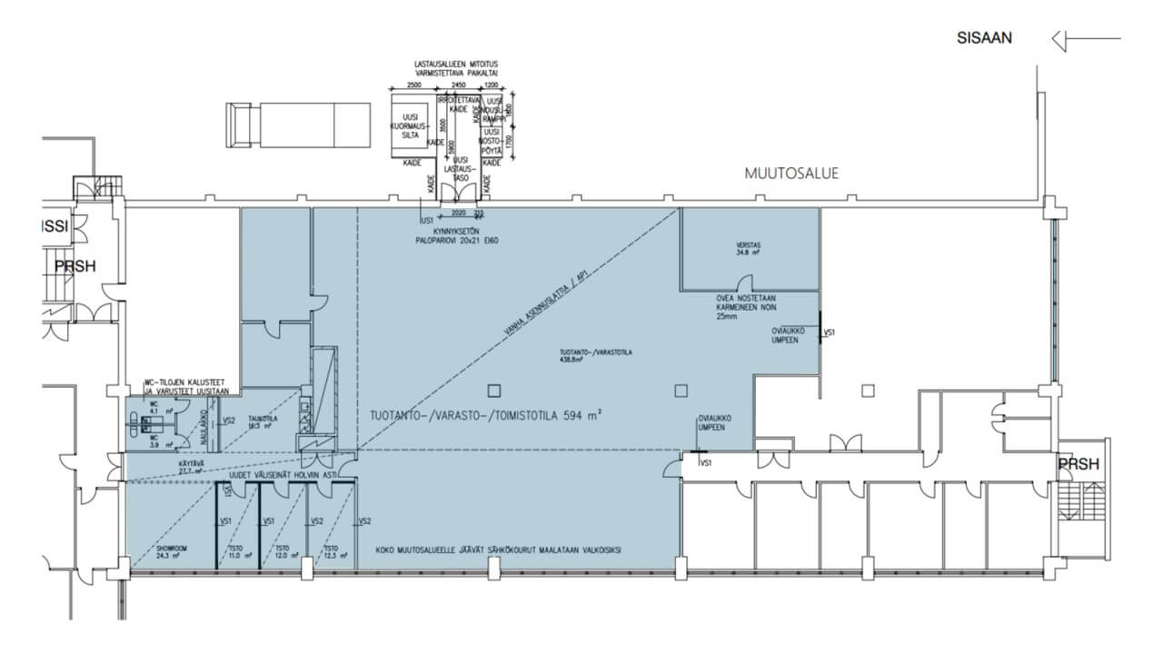
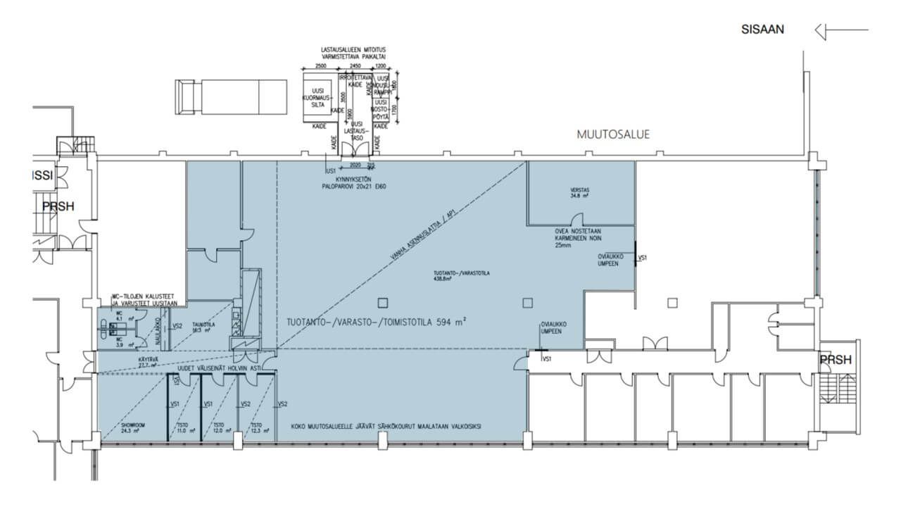
Nyt vuokrattavissa toisen kerroksen modernit tuotantotilat. Tila sisältää niin perinteistä toimistoa kuin siistin keittiön ja varastotilan. Lisäksi tilasta on suora yhteys lastauslaiturille ja omalle lastaustasolle. Tila vapautuu 28.02.2026.
Erinomaisesti ja huolella ylläpidetty kiinteistö on rakennettu 1973 Rautakirjalle pääkonttoriksi. Kiinteistöä on kehitetty jatkuvasti alkuperäistä arkkitehtuuria kunnioittaen. Ärrävaarassa on monipuoliset palvelut kuten aulapalvelu, lounasravintola, viihtyisät neuvottelutilat sekä kuntosali ja jopa uima-allas -alue. Kohteen erityispiirteenä on aulan yhteydessä toimiva täyden palvelun R-kioski. Loistavat liikenneyhteydet, laajat pysäköintialueet ja monipuoliset palvelut huippupuitteet liiketoiminnallesi. Täällä voit myös treenata salilla ja pulahtaa altaassa työpäivän jälkeen ja hakea R-kioskilta vaikka kahvin.
Me Croisettella autamme teitä löytämään teille parhaat tilat! Olemme puolueettomia asiantuntijoita ja tunnemme toimitilamarkkinat, talot sekä tilat vankalla kokemuksella. Meillä on välityksessä kaikki toimitilat ja tiedämme niiden alustavat vuokratasot.
Tehtävämme on tehdä toimitilahaustanne onnistunutta ja helppoa. Saamme palkkiomme kiinteistönomistajalta, joten sinulle palvelumme on täysin maksuton. Jos kiinnostuit, ota yhteyttä sähköpostitse osoitteeseen vuokraus@croisette.fi tai soita numeroon +358 4 00585857.
Croisette Real Estate Partner
Erottajankatu 5 A 6, 00130 Helsinki
Näytä puhelinnumero
+358 400 585 857
Croisette Vuokraus
Näytä puhelinnumero
+358400585857
