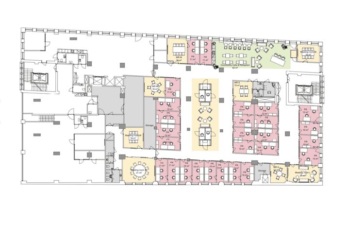
Lataa pohjapiirros [PDF]
Pohjapiirros
Lataa liitetiedosto [PDF]
Liitetiedosto
Vuokrataan toimistotilat - Helsinki
Antinkatu 1, Kamppi, 00100 Helsinki #10841045
Vuokrataan valoisaa ja avaraa toimistotilaa huippusijainnilla Kampin kattavien palveluiden äärellä vuonna 2017 täyssaneeratusta kiinteistöstä. Tehokas pohjaratkaisu mahdollistaa joustavat tilaratkaisut vuokralaisen tarpeen mukaan. Vapaana tiloja eri kokoluokissa; esim. 2.krs 973 m2, 3.krs 1483 m2. Kerroksiin tulee myös tavarahissi. Ota yhteyttä ja sovi esittely, vuokrauspalvelumme on tilanhakijoille maksuton.
Osoite
Antinkatu 1, 00100 Helsinki
Tilatyyppi
Toimistotilaa
1483 m2
Tilajako
Jaettavissa
Pohjapiirros
Kiinteistö
Funkkisrakennus valmistunut v. 1952 valtion kirjapainon käyttöön ja on myöhemmin kunnostettu toimistotaloksi.
Sijainti
Kiinteistö sijaitsee samassa korttelissa Graniittitalon kanssa ja Kampin kauppakeskuksen välittömässä läheisyydessä.
Kulkuyhteydet
Erinomaiset bussiyhteydet Kampin keskuksesta ja raitiovaunuyhteydet Arkadiankadulla ja Mannerheimintiellä.
Vapautuu
Heti
Rakennusvuosi
1952
Saneerausvuosi
2017
Kerros
3
Energiatehokkuusluokka
Ei lain edellyttämää energiatodistusta
Näkyvällä paikalla
Jaettavissa
Hissi
Ota yhteyttä
Senaatin Notariaatti Oy LKV
Lämmittäjänkatu 4 A
FIN-00880 Helsinki
Tel:
Näytä puhelinnumero
+358 9 7745 100
Pyydä lisätietoa
