Vuokrataan toimistotilat - Helsinki
Rahtarinkatu 5, Vuosaari, 00980 Helsinki #10841040
Siisti, moderni 860 m² toimisto Vuosaaren Rahtarinpuistossa.
Osoite
Rahtarinkatu 5, 00980 Helsinki
Tilatyyppi
Toimistotilaa
860 m2
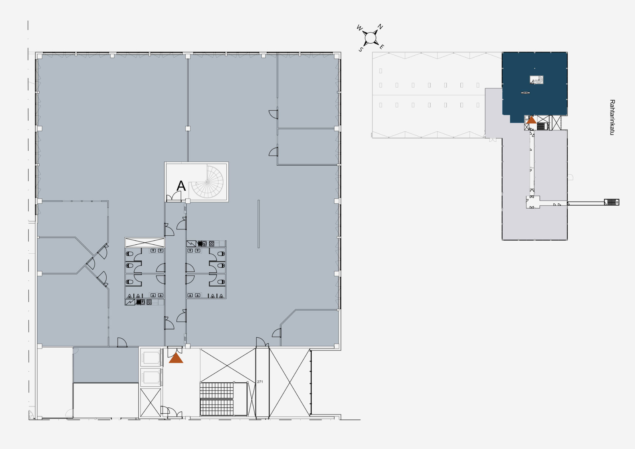
Pohjapiirros
Kiinteistö
Kolmannen kerroksen 860 m² toimisto jossa tällä hetkellä reippaasti avotilaa ja muutama huone.
Vuosaaren Rahtarinpuisto on helmikuussa 2009 valmistunut korjaamo- ja toimistorakennus Vuosaaren satamakeskuksessa.
- Jäähdytettyä tilaa
- Cat6-kaapelointi ja valokuitu
Ilmoituksen kuvat ovat yleiskuvia kiinteistön eri tiloista.
Vuosaaren Rahtarinpuisto on helmikuussa 2009 valmistunut korjaamo- ja toimistorakennus Vuosaaren satamakeskuksessa.
- Jäähdytettyä tilaa
- Cat6-kaapelointi ja valokuitu
Ilmoituksen kuvat ovat yleiskuvia kiinteistön eri tiloista.
Kulkuyhteydet
Bussipysäkki 100 m, Metroasema 3,3 km, Juna-asema 12,6 km, Lentoasema 18,1 km
Vapautuu
Heti
Rakennusvuosi
2009
Kerros
3
Energiatehokkuusluokka
Ei lain edellyttämää energiatodistusta
Hissi
Ota yhteyttä
ScanReal Oy LKV
Opus Business Park
Hitsaajankatu 24
00810 Helsinki
info@scanreal.fi
Puh:
Näytä puhelinnumero
020 730 8830
Sopivat toimitilat yhdellä otolla!
Kartoitamme toimitilatarpeesi ja etsimme yrityksellesi parhaiten sopivat vapaat toimitilat. Koska vuokranantajat maksavat palvelumme, on tämä yrityksellesi veloituksetonta.
OTA YHTEYTTÄ - SOVI NÄYTTÖ!
Kaikki kohteemme eivät ole netissä, kerro tilatarpeesi niin kartoitamme vaihtoehdot.
Palvelumme on tilanhakijalle ilmainen
Pyydä lisätietoa
