Vuokrataan toimistotilat - Helsinki
Aleksanterinkatu 48, Keskusta, 00100 Helsinki #10841033
Vuokrataan ydinkeskustasta modernia ja korkealuokkaista, muuntojoustavaa toimistotilaa kokoluokissa 164 m2, 255 m2, 271 m2 ja 277 m2, tai yhdistämällä tiloja esim. n. 500 m2. Edustavat sisäänkäynti ja hissit. Ota yhteyttä ja sovi esittely, vuokrauspalvelumme on tilanhakijoille maksuton.
Osoite
Aleksanterinkatu 48, 00100 Helsinki
Tilatyyppi
Toimistotilaa
500 m2
Tilajako
Jaettavissa
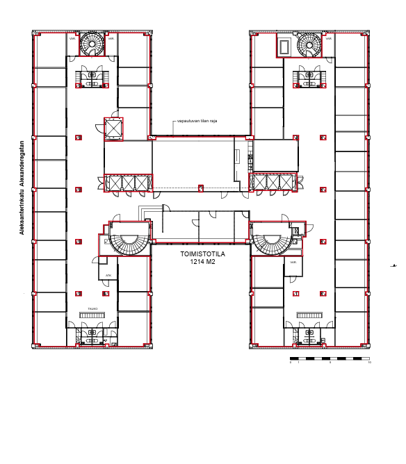
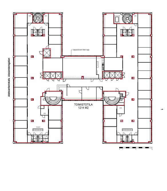
Kerroskoko n. 1200 m2 jaettavissa 4-5 osaan.
Pohjapiirros
Kiinteistö
Arvokiinteistö on sisätiloiltaan 2000-luvulla peruskorjattu: teknisiä parannuksia on tehty erityisesti ympäristöystävällisyyden ja energiatehokkuuden saavuttamiseksi. Talon katolla on aurinkopaneelit, jotka vähentävät kiinteistön sähköntuotannon hiilipäästöjä. Lisäksi kiinteistössä on ympäristöystävällinen lämmitys ja jäähdytys sekä energiatehokas valaistus.
Sijainti
Stockmannin vieressä ja World Trade Centeriä vastapäätä ydinkeskustassa.
Ympäristö
Kansainvälinen, esim. useita rahoitus- ja lakitoimistoja.
Pysäköinti
WTC AutoParkki ja muut keskustan parkkihallit.
Vapautuu
Heti
Rakennusvuosi
1956
Kerros
4-6 / 9
Energiatehokkuusluokka
Ei lain edellyttämää energiatodistusta
Näkyvällä paikalla
Jaettavissa
Hissi
Liitetiedostot
Ota yhteyttä
Senaatin Notariaatti Oy LKV
Lämmittäjänkatu 4 A
FIN-00880 Helsinki
Tel:
Näytä puhelinnumero
+358 9 7745 100
Pyydä lisätietoa
