Vuokrataan toimistotilat - Helsinki
Valimotie 9-11, Pitäjänmäki, 00380 Helsinki #10841025
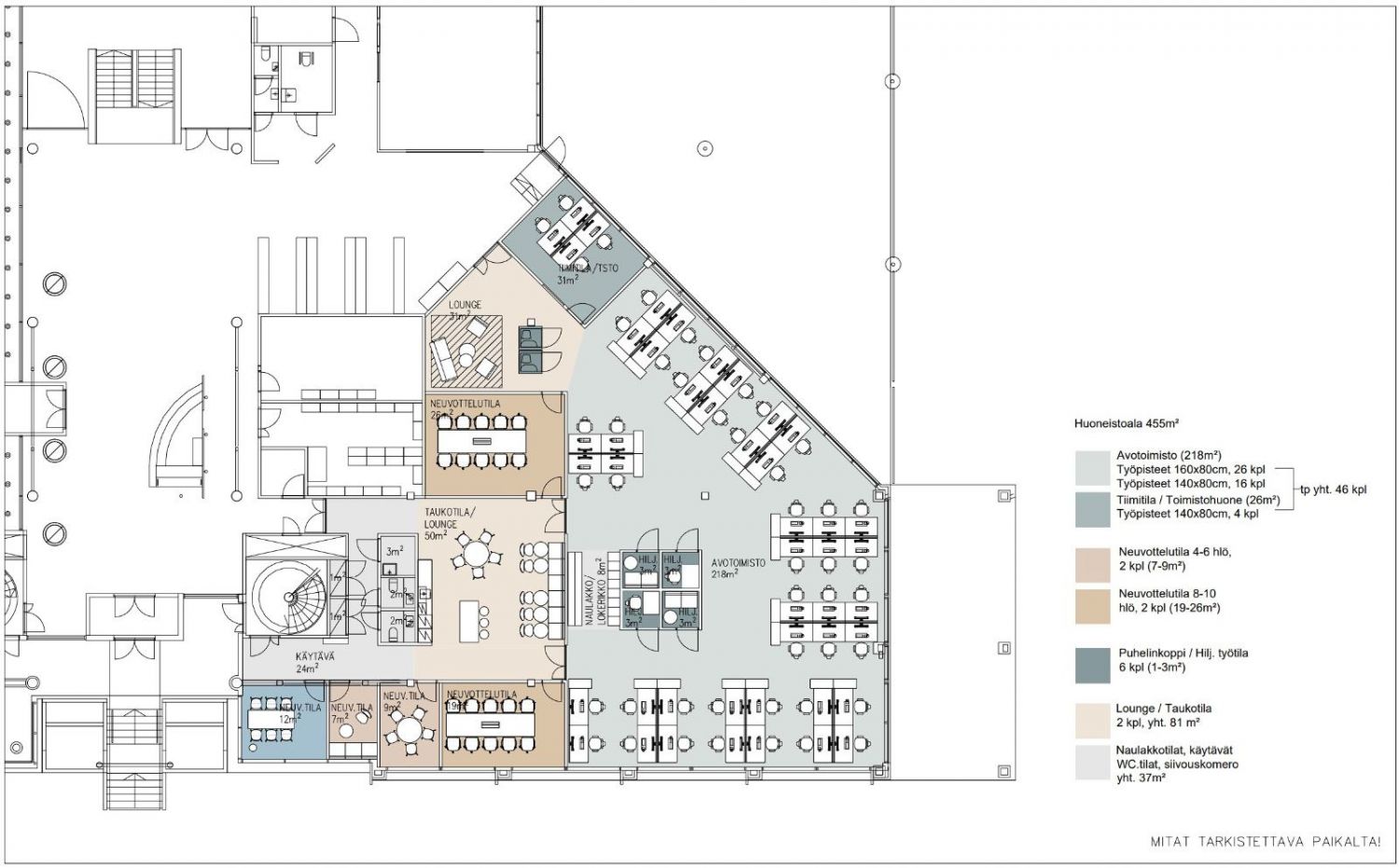
Vuokrataan Helsingin Pitäjänmäeltä ensimmäisen kerroksen 445 m² toimistotila.
Tilan huonekorkeus on poikkeuksellisen korkea n. 3,5 m.
Keskeisen sijaintinsa ansiosta kiinteistöön on helppo saapua ja kaikki Pitäjänmäen palvelut ovat lähettyvillä. Uusi pikaratikka kulkee aivan kiinteistön läheisyydessä, ja Valimon junapysäkille on vain lyhyt kävelymatka.
Kiinteistön palveluina mm. aulapalvelut, lounasravintola, kokoustilat sekä kuntosali. Autohallista on vuokrattavissa pysäköintipaikkoja ja sähköautojen latauskin onnistuu.
Kysy rohkeasti lisätietoja ja sovitaan käynti kohteella jo tänään!
Hissi
Hausala Oy
Erkkilänkatu 11, 33100 Tampere
Näytä puhelinnumero
050 472 7077
Mika Savikko
Näytä puhelinnumero
050 472 7077
Mikko Ranta
Näytä puhelinnumero
050 360 6500
