Vuokrataan liiketilat - Vaasa
Kauppapuistikko 9-11, Keskusta, 65100 Vaasa #10840994
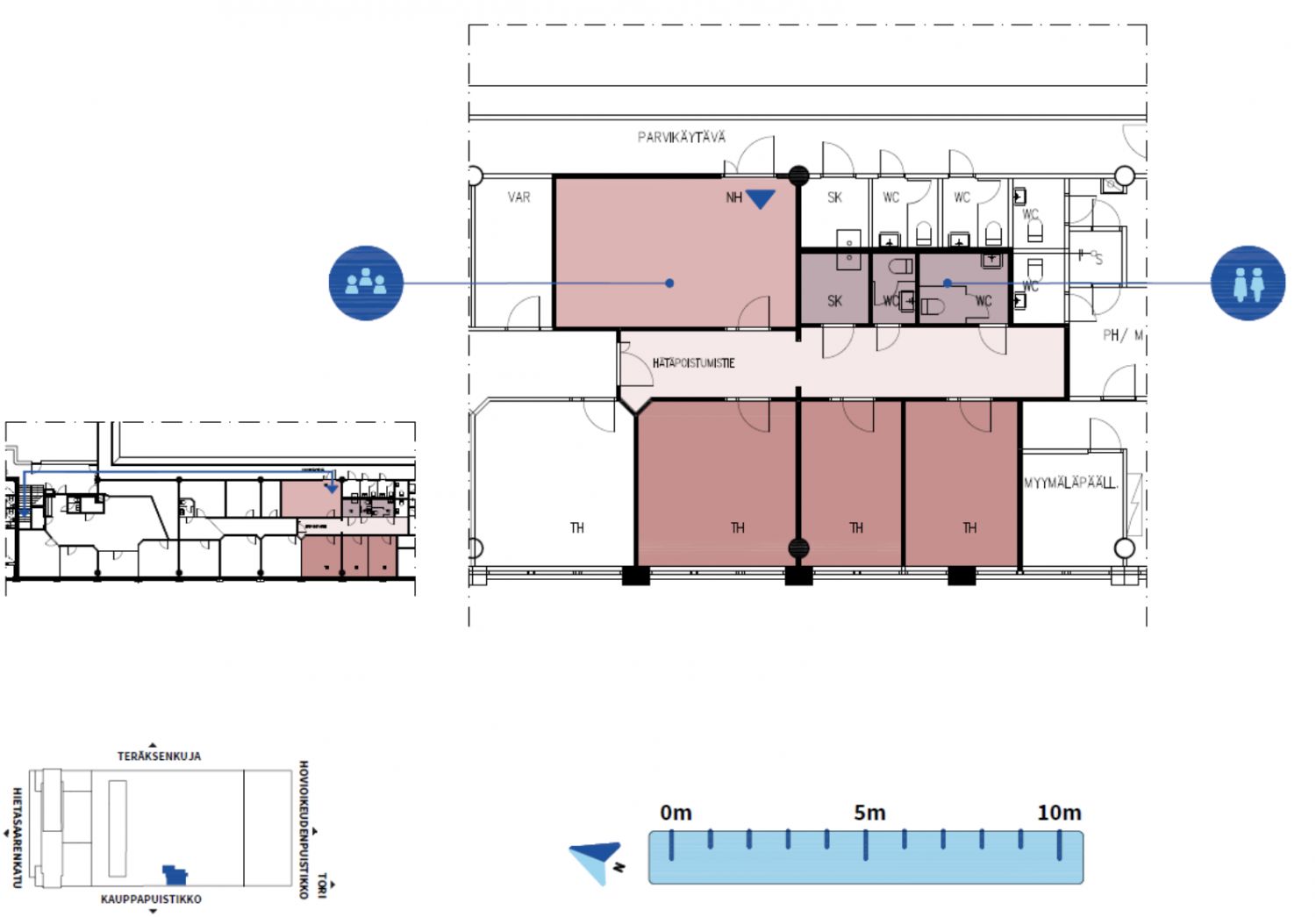
Vuokrataan liiketilaa Vaasan Sampotalosta. Tila on kooltaan 98m2 ja sijaitsee 2. kerroksessa. Jäähdytys. Kiinteistössä on kokoustiloja. Pysäköinti onnistuu läheisessä toriparkissa.
Lisätietoja saat numerosta 020 7290 710
Kohteella ei ole lain edellyttämää energiatodistusta.Kerros: 2
Osoite
Kauppapuistikko 9-11, 65100 Vaasa
Tilatyyppi
Liiketilaa
98 m2
Ota yhteyttä
CRE PREMISES
Puh. Näytä puhelinnumero 020 7290 710
Vantaankoskentie 14
01670 VANTAA
Pyydä lisätietoa
