Vuokrataan toimistotilat - Helsinki
Tukkutorinkuja 5, Kalasatama, 00580 Helsinki #10840927
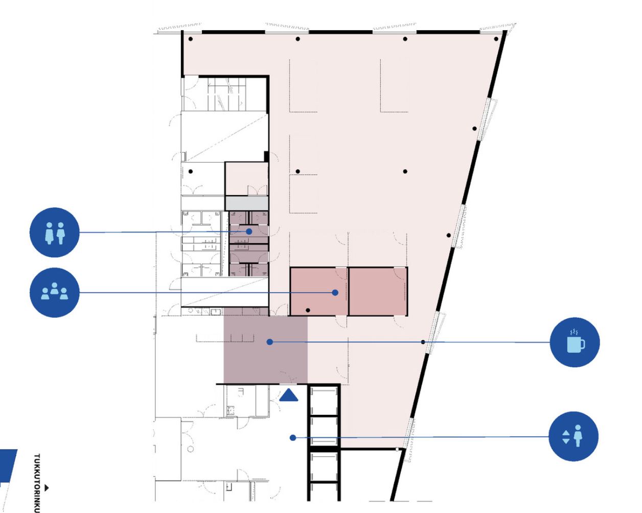
Vuokrattavana avaraa ja erittäin modernia toimitilaa uudiskohteen viidennessä kerroksessa.
Mahdollisuus räätälöidä vuokralaisen toiveiden mukainen avotoimisto tehokkaasti käytettävissä olevaan kerrospohjaan, joka takaa optimaalisen tilankäytön. Talon suuret ikkunat tuovat tiloihin runsaasti luonnonvaloa, lähes kolmen metrin huonekorkeus lisää avaruuden tunnetta ja nykyaikainen talotekniikka luo viihtyisät olosuhteet.
Talon kerroksien toimistot kiertävät suurta valoatriumia, jolloin neuvottelutiloja on mahdollisuus rakentaa atriumin laidalle ja ikkunaseinät jättää avotilaksi.
Kampuksella on yli 800 m2:n kokousmaailma talon 2.kerroksessa, jossa myös erikseen ravintolan yhteydessä olevia kokoustiloja. Lisäksi 7. kerroksessa iso tapahtumatila terasseineen.
Lisätietoja 020 7290 710, lisää kohteita www.premises.fi
Kohteella ei ole lain edellyttämää energiatodistusta tai energialuokka ei tiedossa.Kerros: 5
CRE PREMISES
Puh. Näytä puhelinnumero 020 7290 710
Vantaankoskentie 14
01670 VANTAA
