Vuokrataan - Helsinki
Tammasaarenkatu 1, 00180 Helsinki #10840908
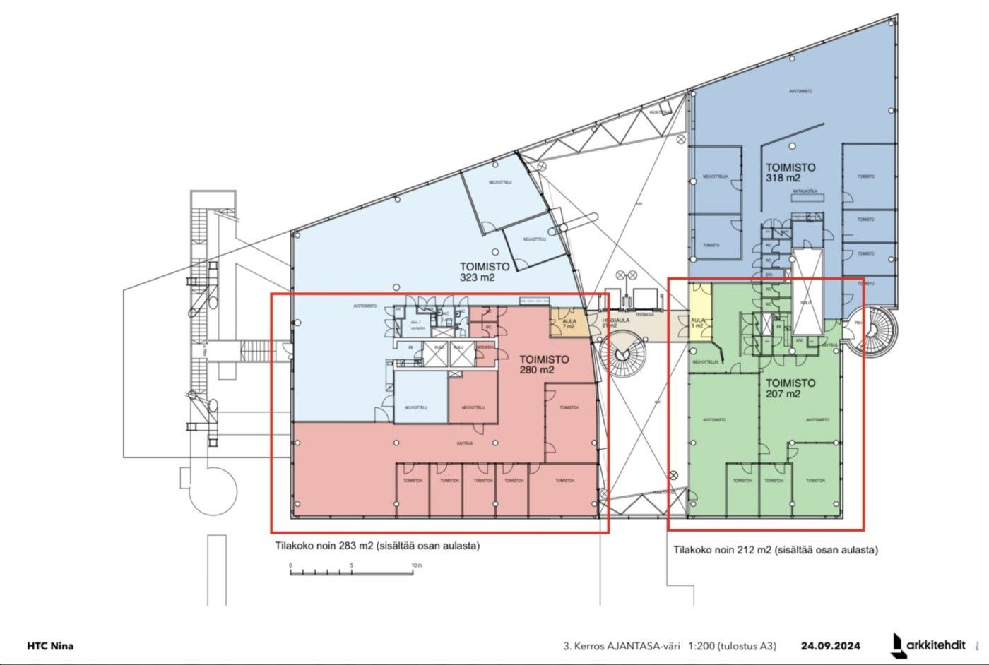
Vuokrattavana 283 m2 toimistotila merellisessä Ruoholahdessa!
Tarjolla kolmannen kerroksen 283 m2 toimistotila, joka koostuu pääosin erillisistä toimistohuoneista. Tilasta avautuvat näkymät Jätkäsaaren suuntaan, ja osasta ikkunoista on myös merinäköala, mikä tuo tilaan valoisuutta ja rauhallista tunnelmaa.
Kiinteistö sijaitsee erinomaisella paikalla meren äärellä Ruoholahdessa. Alueella on sujuvat liikenneyhteydet niin julkisilla kulkuvälineillä kuin omalla autolla, ja lähiympäristön kattavat palvelut tekevät arjesta toimivaa ja vaivatonta.
Kysy lisää: jouko.raitanen@rhg.fi/0504695444
RHG Real Estate
Hämeenkatu 2 B20, 20500 Turku
Jouko Raitanen
Näytä puhelinnumero
050 469 5444
