Vuokrataan varastotilat - Helsinki
Mekaanikonkatu 1, Herttoniemi, 00880 Helsinki #10840902
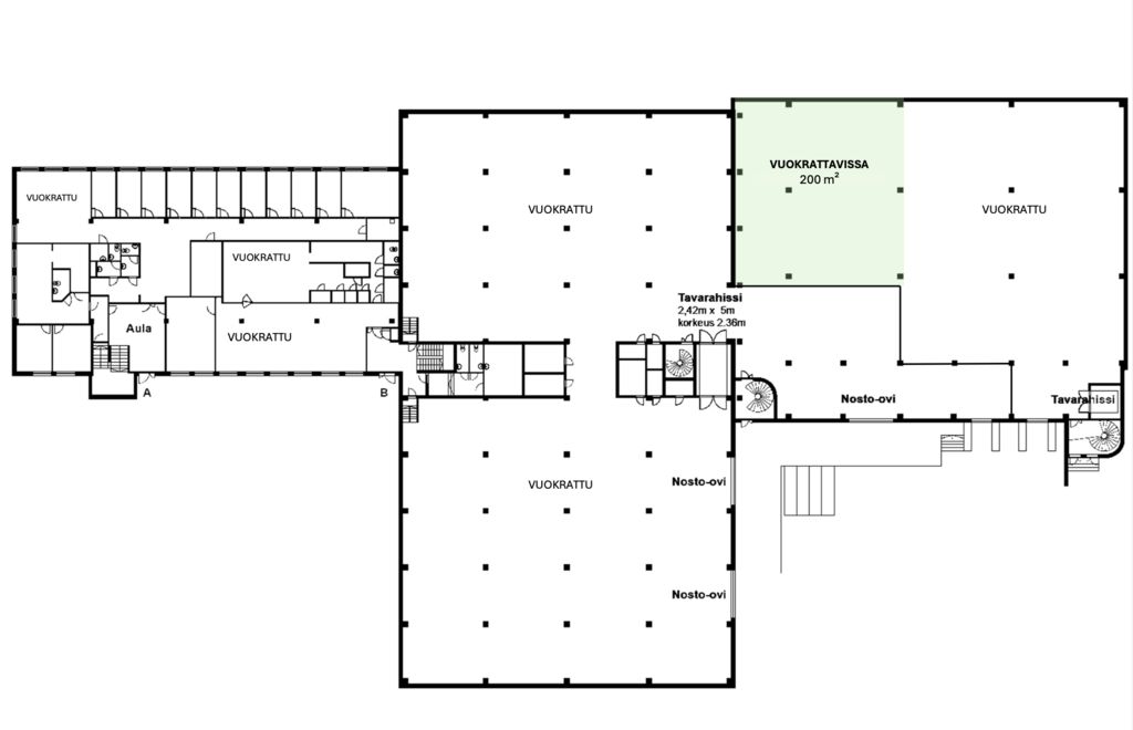
Varastotilaa Helsingin Herttoniemessä.
Tämä 200 m² varastotila sijaitsee kiinteistön katutasossa, ja se on noin 6 metriä korkeaa. Varastoon on lastauslaituriyhteys. Vuokrataan mieluiten 182 m² toimiston kanssa yhdessä. Vapautuminen sopimuksen mukaan.
Mekaanikonkatu 1 on toimisto- ja varastokiinteistö Helsingin Herttoniemessä. Se sijaitsee helposti saavutettavissa olevalla paikalla. Kiinteistössä on isot aidatut ja valvotut piha-alueet. Pihalla on runsaasti pysäköintitilaa. Kiinteistössä on sähköinen kulunvalvonta sekä jäähdytys. Lähialueella on useita lounasravintoloita ja kauppakeskus Hertsi.
Kysy lisää numerosta 044 723 4700 tai info@bref.fi. Palvelumme on tilanhakijoille ilmainen.
Bureau Real Estate Finland Oy
Lars Sonckin kaari 16, 02600 Espoo
Näytä puhelinnumero
0447234700
Bureau Real Estate Finland Oy
https://www.bref.fi