Videoesittely
Vuokrataan liiketilat - Helsinki
Arkadiankatu 17, Etu-Töölö, 00101 Helsinki #10840890
Arkadiankatu 17 - Liiketila 58 m²
Osoite
Arkadiankatu 17, 00101 Helsinki
Tilatyyppi
Liiketilaa
58 m2
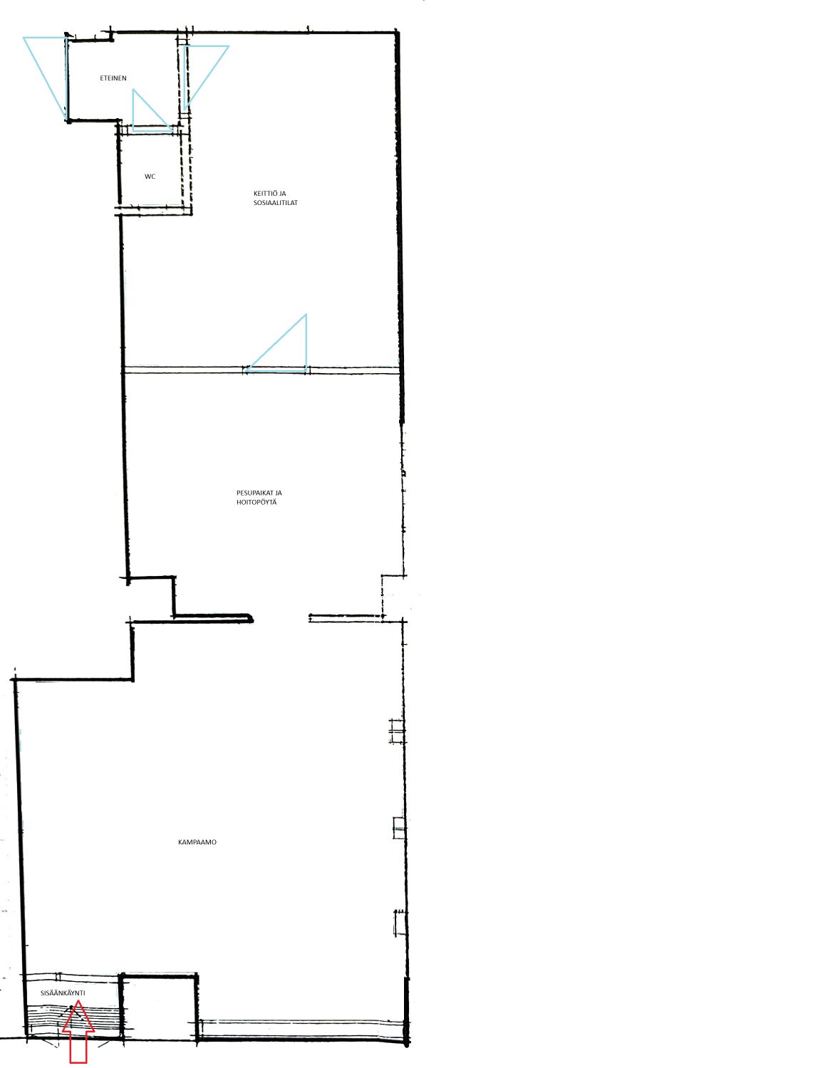
Pohjapiirros
Kiinteistö
Siisti liiketila vuokrattavana – Arkadiankatu 17, Helsinki
Tarjolla vuokrattavaksi kauniisti remontoitu liiketila Helsingin Etu-Töölössä, aivan ratikoiden 1 ja 2 pysäkkien tuntumassa, parin korttelin päässä Kampista. Tämä noin 58 neliömetrin katutason tila tarjoaa erinomaiset puitteet esimerkiksi parturi-kampaamolle, kauneushoitolalle tai muuhun hyvinvointialan palveluita tarjoavalle yritykselle.
Tilan etuosassa sijaitsee valoisa kampaamotila, jossa suuri näyteikkuna avautuu vilkkaalle kadulle. Tilassa on vastaanottotiski, mukavasti odotustilaa sekä 3–4 asiakaspaikkaa. Seuraavassa huoneessa on kaksi pesupaikkaa, ja tähän huoneeseen mahtuu myös hoitopöytä sekä pesukoneet.
Takaosassa sijaitsevat keittiö- ja sosiaalitilat, jotka on suunniteltu henkilökunnan viihtyvyyttä ajatellen. Keittiössä on runsaasti kaappi- ja työtasotilaa, ja sinne mahtuu ruokapöytä useammalle henkilölle. Lisäksi tilassa on WC.
Koko tila on remontoitu kauniin sävyin: kokonaisuus on siisti, viihtyisä ja valmis vastaanottamaan uudet asiakkaat. Kalusteista on mahdollista neuvotella erikseen, mikäli haluat aloittaa toimintasi nopeasti ja vaivattomasti.
Tämä liiketila tarjoaa loistavan sijainnin, toimivan pohjaratkaisun ja näkyvyyttä. Täydellinen valinta sinulle, joka etsit laadukasta tilaa liiketoiminnallesi Helsingin keskustasta.
Katso oheiset kuvat ja video!
Ota yhteyttä ja sovi esittely – tämä tila kannattaa nähdä paikan päällä!
Palvelumme on tilanhakijalle maksuton.
Tarjolla vuokrattavaksi kauniisti remontoitu liiketila Helsingin Etu-Töölössä, aivan ratikoiden 1 ja 2 pysäkkien tuntumassa, parin korttelin päässä Kampista. Tämä noin 58 neliömetrin katutason tila tarjoaa erinomaiset puitteet esimerkiksi parturi-kampaamolle, kauneushoitolalle tai muuhun hyvinvointialan palveluita tarjoavalle yritykselle.
Tilan etuosassa sijaitsee valoisa kampaamotila, jossa suuri näyteikkuna avautuu vilkkaalle kadulle. Tilassa on vastaanottotiski, mukavasti odotustilaa sekä 3–4 asiakaspaikkaa. Seuraavassa huoneessa on kaksi pesupaikkaa, ja tähän huoneeseen mahtuu myös hoitopöytä sekä pesukoneet.
Takaosassa sijaitsevat keittiö- ja sosiaalitilat, jotka on suunniteltu henkilökunnan viihtyvyyttä ajatellen. Keittiössä on runsaasti kaappi- ja työtasotilaa, ja sinne mahtuu ruokapöytä useammalle henkilölle. Lisäksi tilassa on WC.
Koko tila on remontoitu kauniin sävyin: kokonaisuus on siisti, viihtyisä ja valmis vastaanottamaan uudet asiakkaat. Kalusteista on mahdollista neuvotella erikseen, mikäli haluat aloittaa toimintasi nopeasti ja vaivattomasti.
Tämä liiketila tarjoaa loistavan sijainnin, toimivan pohjaratkaisun ja näkyvyyttä. Täydellinen valinta sinulle, joka etsit laadukasta tilaa liiketoiminnallesi Helsingin keskustasta.
Katso oheiset kuvat ja video!
Ota yhteyttä ja sovi esittely – tämä tila kannattaa nähdä paikan päällä!
Palvelumme on tilanhakijalle maksuton.
Vapautuu
Kysy
Kerros
1
Liitetiedostot
Ota yhteyttä
LogisTila Oy
Kylätie 11-13, 00320 HELSINKI
Karoliina Turppo
Näytä puhelinnumero
050 345 3258
Pyydä lisätietoa
