Vuokrataan toimistotilat, työtilat, muut tilat - Tampere
Finlaysoninkuja 22, Keskusta, 33210 Tampere #10840844
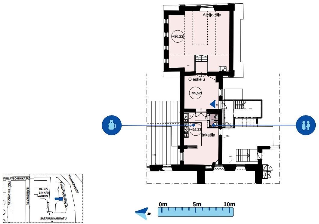
Vuokrataan Tampereen keskustasta Finlaysonin alueelta toisen kerroksen 144 m² toimisto-/työtila, joka toiminut korkeana ateljeetilana. Tilaan on oma sisäänkäynti.
Keskeisen sijaintinsa ansiosta kiinteistöön on helppo saapua ja kaikki keskustan palvelut ovat lähettyvillä. Ratikka ja bussit kulkevat aivan kiinteistön läheisyydessä, ja Tampereen rautatieasemalle on vain lyhyt kävelymatka.
Kysy rohkeasti lisätietoja ja sovitaan käynti kohteella jo tänään!
Hausala Oy
Erkkilänkatu 11, 33100 Tampere
Näytä puhelinnumero
050 472 7077
Mikko Ranta
Näytä puhelinnumero
050 360 6500
Mika Savikko
Näytä puhelinnumero
050 472 7077
