Vuokrataan toimistotilat - Helsinki
Pitkänsillanranta 3, Hakaniemi, 00530 Helsinki #10840832
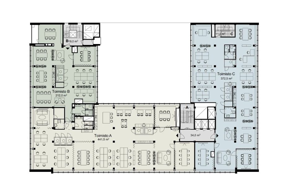
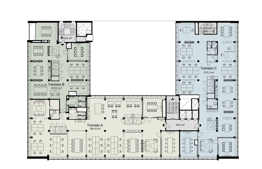
Tästä toimistosta ei upeat maisemat puutu, sillä tilasta voi nähdä merta jopa kolmesta eri suunnasta. Tila tullaan remontoimaan täysin käyttäjän tarpeiden mukaan, ja tarvittaessa se voidaan jakaa pienempiin osiin. Toimisto sijaitsee kahdeksannessa kerroksessa.
Pitkäsillanranta on loistava valinta, jos etsit toimistokodin sijaintia aivan keskustan kupeesta ja kuitenkin palveluiden lähettyviltä. Kiinteistöstä löytyy monipuolisia toimistotiloja, joita on uudistettu vuokralaisten tarpeita vastaaviksi (mm. koneellinen ilmanvaihto ja jäähdytetty tuloilma). Kiinteistön palveluihin kuuluu kuntosali ja lähietäisyydeltä löydät runsaasti lounasravintolavaihtoehtoja ja päivittäistavarakauppoja. Kohde on helposti saavutettavissa julkisilla kulkunevoilla ja Helsingin keskusta on lyhyen kiven heiton päässä.
Me Croisettella autamme teitä löytämään teille parhaat tilat! Olemme puolueettomia asiantuntijoita ja tunnemme toimitilamarkkinat, talot sekä tilat vankalla kokemuksella. Meillä on välityksessä kaikki toimitilat ja tiedämme niiden alustavat vuokratasot.
Tehtävämme on tehdä toimitilahaustanne onnistunut ja helppo. Saamme palkkiomme kiinteistönomistajalta, joten sinulle palvelumme on täysin maksuton.
Croisette Real Estate Partner
Erottajankatu 5 A 6, 00130 Helsinki
Näytä puhelinnumero
+358 400 585 857
Croisette Vuokraus
Näytä puhelinnumero
+358400585857
