Vuokrataan toimistotilat - Tampere
Kuninkaankatu 21, 33210 Tampere #10840831
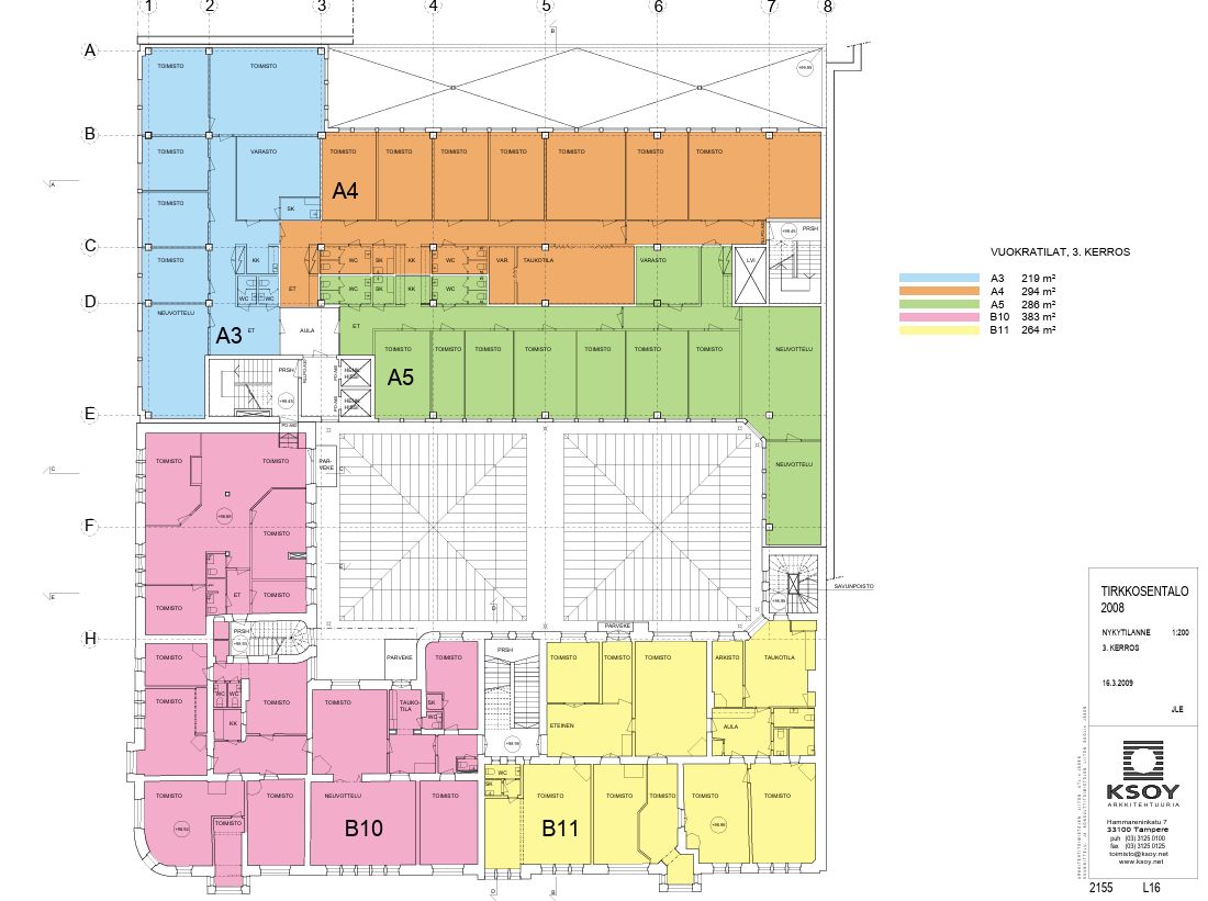
Tirkkosen talon, B-portaan 3:ssä kerroksessa sijaitseva, tunnelmallinen erikokoisiin huoneisiin jaettu 383 m2 suuruinen toimistotila. Korkeat huoneet, kakluuneja, kauniita yksityiskohtia. Ota yhteyttä ja sovi esittely, vuokrauspalvelumme on tilanhakijoille maksuton.
Osoite
Kuninkaankatu 21, 33210 Tampere
Tilatyyppi
Toimistotilaa
383 m2
Pohjapiirros
Kiinteistö
Kauppaneuvos Tirkkosen liiketalo on yksi Tampereen kauneimpia helmiä. Jugendtyylisen talon suunnittelivat arkkitehdit Lars Sonck ja Birger Federley.
Kiinteistön arkkitehtuuri on täynnä huoliteltuja yksityiskohtia kuten seinäreliefejä, puuseppien taidokkaasti tekemiä kaiteita ja värikkäitä kakluuneja. Vuonna 1901 valmistunutta vanhaa osaa täydentää 1986 valmistunut laajennusosa ja 2010-luvulla katettu kaunis sisäpiha, jossa toimii mm. kahvila.
Kiinteistön arkkitehtuuri on täynnä huoliteltuja yksityiskohtia kuten seinäreliefejä, puuseppien taidokkaasti tekemiä kaiteita ja värikkäitä kakluuneja. Vuonna 1901 valmistunutta vanhaa osaa täydentää 1986 valmistunut laajennusosa ja 2010-luvulla katettu kaunis sisäpiha, jossa toimii mm. kahvila.
Sijainti
Talo sijaitsee Tampereen ytimessä vilkkaan kävelykadun varrella, vain sata metriä pääkatu Hämeenkadulta.
Pysäköinti
Autopaikkoja löytyy omasta autohallista sekä lähellä olevasta pysäköintitalosta.
Kulkuyhteydet
Erinomaiset
Vapautuu
Heti
Kerros
3
Energiatehokkuusluokka
Ei lain edellyttämää energiatodistusta
Näkyvällä paikalla
Ota yhteyttä
Senaatin Notariaatti Oy LKV
Lämmittäjänkatu 4 A
FIN-00880 Helsinki
Tel:
Näytä puhelinnumero
+358 9 7745 100
Pyydä lisätietoa
