Vuokrataan toimistotilat - Helsinki
Sörnäisten rantatie 31, Sörnäinen, 00540 Helsinki #10840824
Vuokrataan edullista monitoimitilaa hyvillä liikenneyhteyksillä kehittyvän Kalasataman vierestä.
Osoite
Sörnäisten rantatie 31, 00540 Helsinki
Tilatyyppi
Toimistotilaa
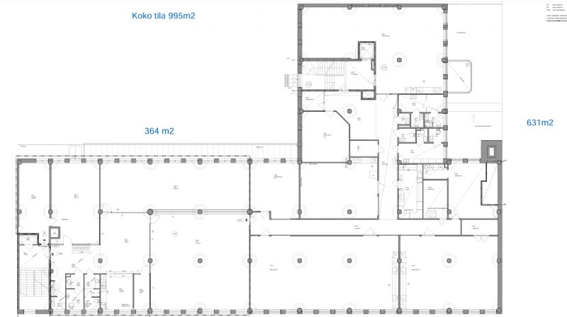
631 m2
Tilajako
Jaettavissa
2.krs 995 m2 jaettavissa 631 m2/364 m2.
Pohjapiirros
Kiinteistö
Sörnäisten rantatie 31:n kiinteistö tarjoaa monitoimitilaa niin isommille kuin pienemmille toimijoille. Kiinteistössä on toteutettu mittava ja kaikenkattava sisäilmaremontti vuosina 2016 ja 2017. Kohteen julkisivu on suojeltu ja julkisivut ovat ikkunoineen kauttaaltaan peruskorjattu vuonna 2017.
Sijainti
Sijainti on loistava lähellä Kauppakeskus REDI: n palveluita ja julkista liikennettä.
Ympäristö
Kehittyvä Kalasataman alue.
Pysäköinti
Viereisessä pysäköintihallissa löytyy muutamia parkkipaikkoja.
Palvelut
REDI
Kulkuyhteydet
Kiinteistöltä on sekä Sörnäisten että Kalasataman metroasemalle vain muutaman sadan metrin matka.
Vapautuu
Heti
Kerros
2 / 4
Energiatehokkuusluokka
Ei lain edellyttämää energiatodistusta
Jaettavissa
Ota yhteyttä
Senaatin Notariaatti Oy LKV
Lämmittäjänkatu 4 A
FIN-00880 Helsinki
Tel:
Näytä puhelinnumero
+358 9 7745 100
Pyydä lisätietoa
