Vuokrataan toimistotilat - Helsinki
Tammasaarenkatu 7, Ruoholahti, 00180 Helsinki #10840805
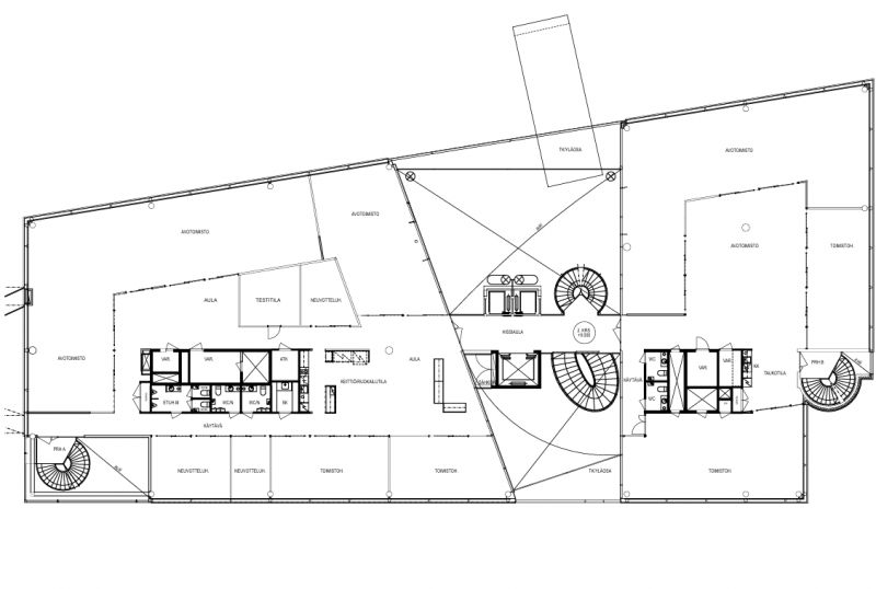
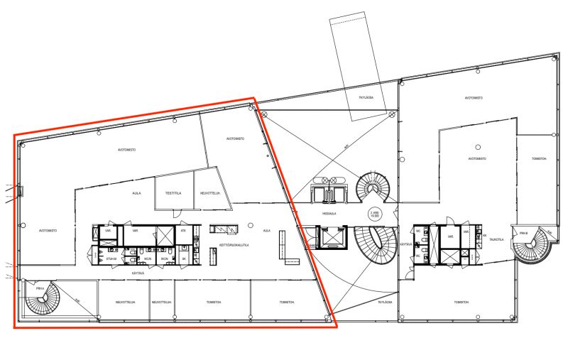
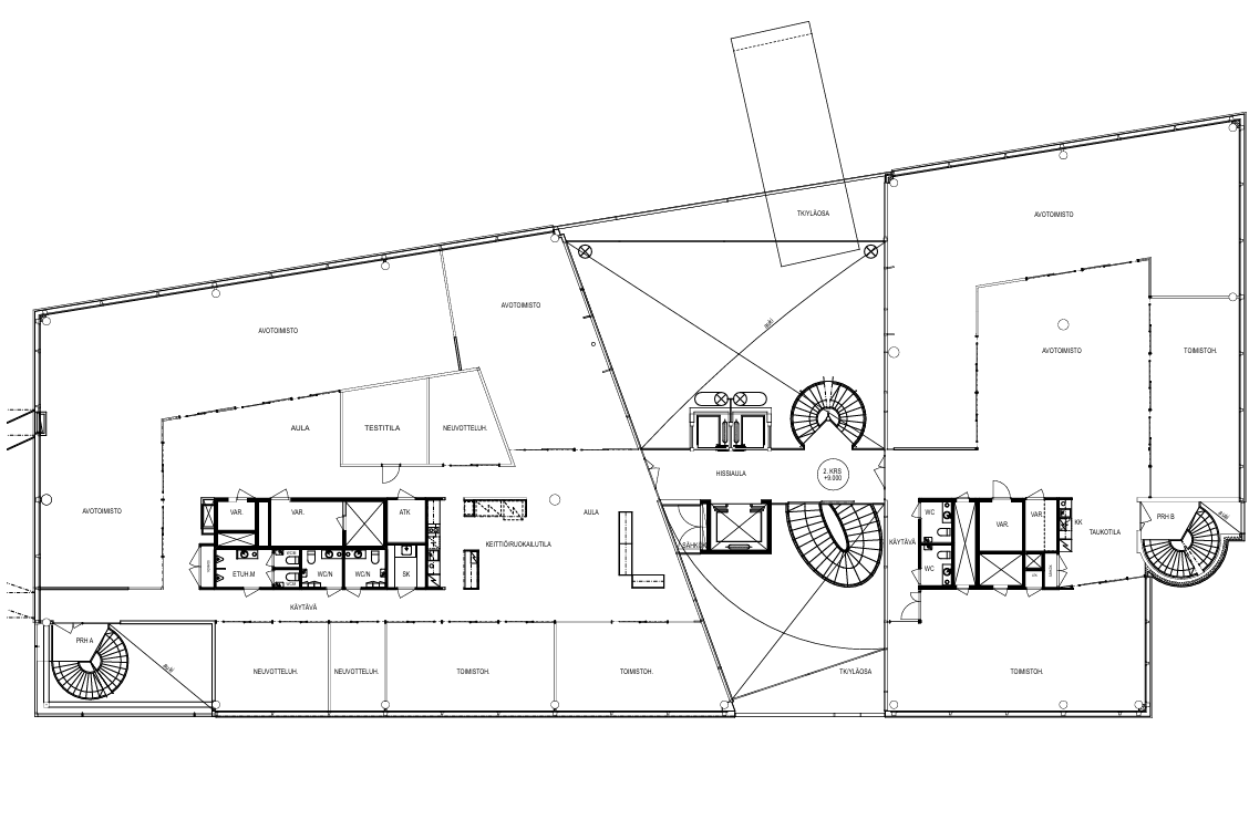
Vuokrattavana 2. kerroksen 996 m2 kombitoimisto Ruoholahdesta meren ääreltä. Tila voidaan jakaa kahteen osaan, n. 571 m2 ja 425 m2. High Tech Center Helsingissä on aulapalvelut, kaksi ravintolaa, neuvottelu- ja edustustiloja catering-palveluineen, auditorion, kuntosalin ym. huipputasoisia business park -palveluita. Ota yhteyttä ja sovi esittely, vuokrauspalvelumme on tilanhakijoille maksuton.
Osoite
Tammasaarenkatu 7, 00180 Helsinki
Tilatyyppi
Toimistotilaa
571 m2
Tilajako
Jaettavissa
571 m2/425 m2
Pohjapiirros
Kiinteistö
Upealla paikalla Ruoholahdessa sijaitseva High Tech Center Helsinki koostuu viidestä modernista toimistorakennuksesta. Talot tunnetaan arkkitehtipalkintoja voittaneista kilpailuista.
Sijainti
Kiinteistö sijaitsee hyvien kulkuyhteyksien varrella, kävelymatkan päässä metroasemalta.
Pysäköinti
HTC Helsinkiä palvelee lisäksi yhteinen pysäköintihalli.
Vapautuu
Heti
Kerros
2 / 8
Energiatehokkuusluokka
Ei lain edellyttämää energiatodistusta
Jaettavissa
Hissi
Ota yhteyttä
Senaatin Notariaatti Oy LKV
Lämmittäjänkatu 4 A
FIN-00880 Helsinki
Tel:
Näytä puhelinnumero
+358 9 7745 100
Pyydä lisätietoa
