Vuokrataan toimistotilat - Helsinki
Itämerenkatu 1, Ruoholahti, 00180 Helsinki #10840802
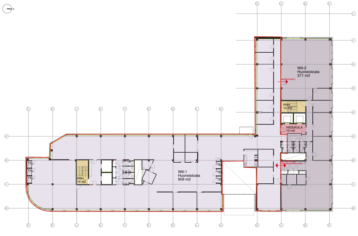
Ruoholahden -Westport- Business Park sijaitsee näkyvällä paikalla Mechelininkadun varrella Ruoholahden toimistoalueen itäpäädyssä. Vuokrattavissa on kuudennen kerroksen hyväkuntoinen 909 m2 toimistokokonaisuus. Kiinteistössä vastaanotto- ja aulapalvelu, ravintola, neuvottelumaailma, edustus ja saunatilat katolla, kuntosali sekä autohalli. SOITA ja SOVI ESITTELY, Puh: 09 7745 100.
Osoite
Itämerenkatu 1, 00180 Helsinki
Tilatyyppi
Toimistotilaa
909 m2
Pohjapiirros
Kiinteistö
KOY Westport
Sijainti
Ruoholahden Mechelininkadun puoleinen reuna.
Ympäristö
Toimistojen korttelialue
Pysäköinti
Autohallissa alueeseen suhteutettuna runsaasti edullista pysäköintitilaa.
Palvelut
Kiinteistössä aulapalvelu, ravintola, neuvottelumaailma, edustus- ja saunatilat katolla, kuntosali sekä autohalli.
Kulkuyhteydet
Metro, bussit, ratikat
Vapautuu
Heti
Kerros
4 / 9
Energiatehokkuusluokka
Ei lain edellyttämää energiatodistusta
Näkyvällä paikalla
Hissi
Ota yhteyttä
Senaatin Notariaatti Oy LKV
Lämmittäjänkatu 4 A
FIN-00880 Helsinki
Tel:
Näytä puhelinnumero
+358 9 7745 100
Pyydä lisätietoa
