Vuokrataan toimistotilat - Helsinki
Ruoholahdenkatu 8, Kamppi, 00180 Helsinki #10840785
Vuokrataan siistikuntoista toimistotilaa, joka räätälöidään käyttäjän tarpeiden mukaan. Keskeinen sijainti Kampin keskuksen ja Ruoholahden läheisyydessä. Toimistossa ilmastointi ja Cat 6 kaapelointi. Sisäkuvat ovat yleiskuvia kiinteistön tiloista ja edustavat tilojen yleistä tasoa. Ota yhteyttä ja sovi esittely, vuokrauspalvelumme on tilanhakijalle maksuton.
Osoite
Ruoholahdenkatu 8, 00180 Helsinki
Tilatyyppi
Toimistotilaa
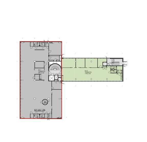
387 m2
Pohjapiirros
Kiinteistö
Toimistotalo joka on peruskorjattu vuonna 2005.
Sijainti
Lapinlahdenkadun puistikon äärellä.
Pysäköinti
Sisäpihalla ja autohallissa yhteensä 50 autopaikkaa.
Palvelut
Kaikki keskustan palvelut.
Kulkuyhteydet
HSL, Metro
Vapautuu
Heti
Saneerausvuosi
2005
Kerros
4 / 7
Energiatehokkuusluokka
Ei lain edellyttämää energiatodistusta
Näkyvällä paikalla
Hissi
Ota yhteyttä
Senaatin Notariaatti Oy LKV
Lämmittäjänkatu 4 A
FIN-00880 Helsinki
Tel:
Näytä puhelinnumero
+358 9 7745 100
Pyydä lisätietoa
