Vuokrataan toimistotilat - Helsinki
Aleksanterinkatu 46, Keskusta, 00100 Helsinki #10840783
Vuokrattavana toimistotilaa arvohuoneistosta Esplanadin puiston vierestä. Tiloissa on moderni tekniikka kiinteistössä tehdyn perusparannustyön tuloksena. Ota yhteyttä ja sovi esittely, vuokrauspalvelumme on tilanhakijoille maksuton.
Osoite
Aleksanterinkatu 46, 00100 Helsinki
Tilatyyppi
Toimistotilaa
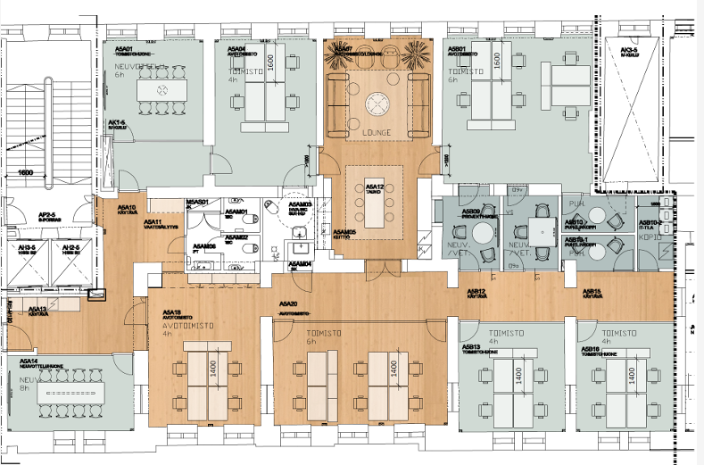
320 m2
Pohjapiirros
Kiinteistö
Tässä K.A. Wreden suunnittelemassa ja vuonna 1888 valmistuneessa arvokiinteistössä tehdyt perusparannustyöt on toteutettu kiinteistön arkkitehtuuria ja arvokasta historiaa kunnioittaen. Uudet nykyaikaiset toimistot ovat vertaansa vailla tunnelmallisessa ja arvokkaassa rakennuksessa.
Sijainti
Gaselli-korttelin eteläpäädyssä oleva kiinteistö on loistavalla paikalla Helsingin ydinkeskustassa viihtyisän Esplanadin puistokadun varrella.
Pysäköinti
Keskustan parkkihallit.
Palvelut
Kaikki keskustan palvelut.
Vapautuu
Heti
Kerros
3
Energiatehokkuusluokka
Ei lain edellyttämää energiatodistusta
Hissi
Ota yhteyttä
Senaatin Notariaatti Oy LKV
Lämmittäjänkatu 4 A
FIN-00880 Helsinki
Tel:
Näytä puhelinnumero
+358 9 7745 100
Pyydä lisätietoa
