Vuokrataan toimistotilat - Espoo
Lintuvaarantie 2, Leppävaara, 02650 Espoo #10840774
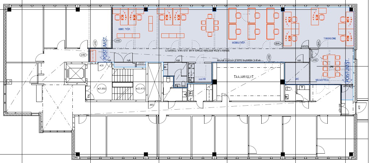
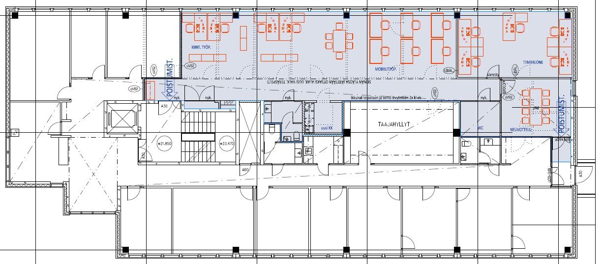
Siisti 4. kerroksen 183,5 m² toimistotila Leppävaarassa, Sellon lähettyvillä.
Osoite
Lintuvaarantie 2, 02650 Espoo
Tilatyyppi
Toimistotilaa
183,5 m2
Pohjapiirros
Kiinteistö
Siisti huonetoimistotila Soinnun B-talossa, josta näkymät avautuvat pohjoiseen.
Kiinteistö tarjoaa runsaasti palveluita vuokralaisilleen kuten lounasravintolan, kuntosalin sekä kokoustiloja. Kohde sijaitsee erinomaisella paikalla aivan Leppävaaran juna-aseman vieressä lähellä Kauppakeskus Sellon palveluita.
Kiinteistö tarjoaa runsaasti palveluita vuokralaisilleen kuten lounasravintolan, kuntosalin sekä kokoustiloja. Kohde sijaitsee erinomaisella paikalla aivan Leppävaaran juna-aseman vieressä lähellä Kauppakeskus Sellon palveluita.
Kulkuyhteydet
Bussipysäkki 100 m, Juna-asema 400 m, Lentoasema 18,7 km
Vapautuu
Heti
Kerros
4
Energiatehokkuusluokka
Ei lain edellyttämää energiatodistusta
Näkyvällä paikalla
Hissi
Ota yhteyttä
ScanReal Oy LKV
Opus Business Park
Hitsaajankatu 24
00810 Helsinki
info@scanreal.fi
Puh:
Näytä puhelinnumero
020 730 8830
Sopivat toimitilat yhdellä otolla!
Kartoitamme toimitilatarpeesi ja etsimme yrityksellesi parhaiten sopivat vapaat toimitilat. Koska vuokranantajat maksavat palvelumme, on tämä yrityksellesi veloituksetonta.
OTA YHTEYTTÄ - SOVI NÄYTTÖ!
Kaikki kohteemme eivät ole netissä, kerro tilatarpeesi niin kartoitamme vaihtoehdot.
Palvelumme on tilanhakijalle ilmainen
Pyydä lisätietoa
